栃木市今泉町2期 No.31

  • 太陽光パネル
  • 省令準耐火構造
  • 住宅設備10年保証

「太陽光発電システム」9.345kW搭載!

栃木市今泉町2期 No.31
栃木市今泉町2期 No.31
栃木市今泉町2期 No.31
栃木市今泉町2期 No.31
栃木市今泉町2期 No.31

※パースはイメージです。仕様は物件により異なります。

販売価格

3,250万円(税込)

月々支払い:79,516

ローン概要はこちら

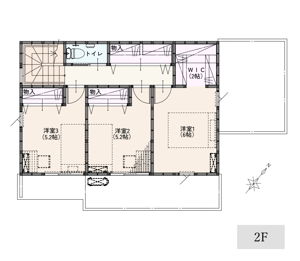
間取 3LDK+畳コーナー
土地面積 226.31m²(68.45坪)
建物面積 105.98m²(32.05坪)

ローン概要

※ローン概要:取扱金融機関/足利銀行、返済方法/3年固定金利、/返済期間40年、借入金利/0.825%、融資期間40年、金利は実際に融資が実行される月の金利となります。金利は変わることがあります。ボーナス(¥ 年0回加算)を含む、融資手数料等、別途諸費用が必要になります。詳しくは店舗までお問合せ下さい。上記融資条件及び金利は令和8年4月時点のものです。

この物件の
ポイント

1.「太陽光発電システム」9.345kW搭載
2.日当たり良好な約22帖の大空間!LDK+畳コーナーで家族団らんのひと時を、畳コーナーのカウンターはちょっとした作業にも便利です。
3.カウンター付きランドリールームで、「洗う・干す・畳む」までが一か所で完結。
4.全居室南側&収納完備で自分時間も快適にお過ごしいただけます。
5.生活動線に収納スペースを確保!キッチン横には棚付き物入、玄関クローク、トイレ近くの収納など、使いたいときに手が届く場所に設計しました。

間取 / 区画図

  1. 1F

    1F

  2. 2F

    2F

  3. 区画図

    区画図

右スクロールでご覧いただけます。

アクセス

教養施設

商業施設

交通

基本物件概要 (分譲地)

分譲地名

栃木市今泉町2期

所在地

栃木県栃木市今泉町一丁目字情進川戸768-1外 (MAP)

交通

東武日光線「新栃木駅」から徒歩約12分~14分(約900m~1,100m)

学区

大宮北小学校/東陽中学校

総区画数

31区画

地目

宅地

用途地域

第一種低層住居専用地域・第二種中高層住居専用地域

都市計画

市街化区域

道路

6.0m幅員アスファルト舗装

取引形態

売主

設備

市営水道・公共下水・東京電力・プロパンガス個別方式

権利(土地権利)

所有権

施工・設計会社名

株式会社ノーブルホーム

その他特記事項

※電柱及び支線位置の変更はできませんのでご了承下さい。
※下水道受益者負担金1㎡/280円
※確定測量後
※建築条件付き
※都市計画道路(新栃木駅東口線)内にあり、建築する場合、都市計画法第53条(建築の許可)が必要となります。許可必要区画(No.7・23・24)
※北側への車両による通り抜け不可
No.7・No.13・No.14・No.19・No.23  2025年12月26日価格更新

最終更新日

2026年4月10日

建売分譲住宅 (栃木市今泉町2期 No.31)

販売価格

3,250万円(税込)

建ぺい率

40% / 60%

容積率

60% / 200%

土地面積

226.31m²(68.45坪)

建物面積

105.98m²(32.05坪)

間取

3LDK+畳コーナー

構造

木造2階建て(在来工法)

建築確認番号

第東日本25-15899号

建物完成時期

2026年8月

現況

引渡し可能日

相談

OTHER ESTATE

周辺の物件