栃木市運動公園東 No.12

開放感ある東西の2方角地、リビング階段とタタミで家族時間が増える住まい

栃木市運動公園東 No.12
栃木市運動公園東 No.12
栃木市運動公園東 No.12
栃木市運動公園東 No.12
栃木市運動公園東 No.12

※パースはイメージです。仕様は物件により異なります。

販売価格

2,750万円(税込)

月々支払い:67,283

ローン概要はこちら

間取 3LDK+畳コーナー
土地面積 205.34m²(62.11坪)
建物面積 100.36m²(30.29坪)

ローン概要

※ローン概要:取扱金融機関/足利銀行、返済方法/3年固定金利、/返済期間40年、借入金利/0.825%、融資期間40年、金利は実際に融資が実行される月の金利となります。金利は変わることがあります。ボーナス(¥ 年0回加算)を含む、融資手数料等、別途諸費用が必要になります。詳しくは店舗までお問合せ下さい。上記融資条件及び金利は令和8年4月時点のものです。

この物件の
ポイント

1.LDKとタタミルームで、19帖の広々空間
2.4帖のファミリークローゼット
3.3帖の屋根付きバルコニーで、急な雨でもお洗濯物が濡れずに安心です。

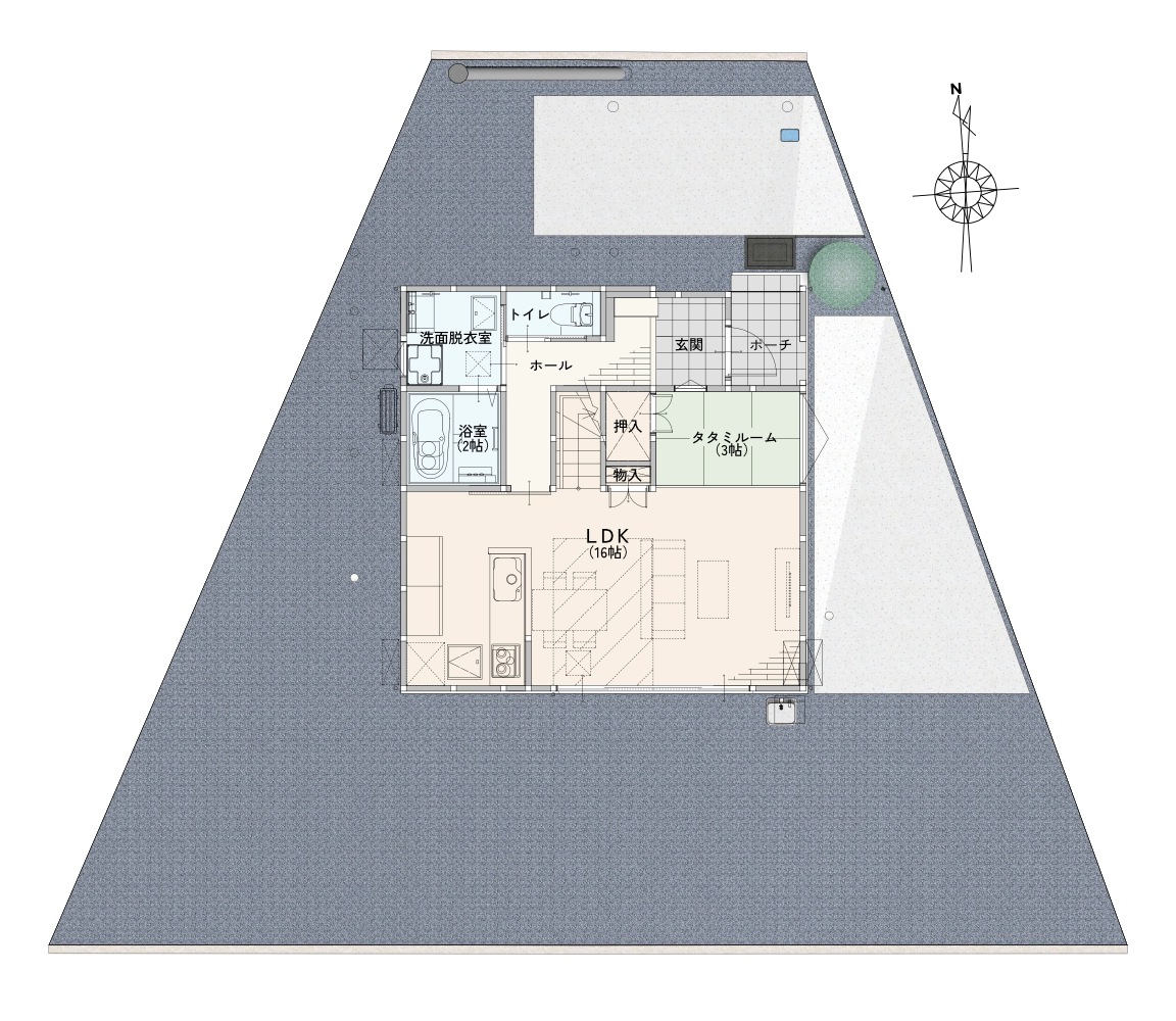
間取 / 区画図

  1. 1F+外構図

    1F+外構図

  2. 2F

    2F

  3. 区画図

    区画図

右スクロールでご覧いただけます。

よくあるご質問

小さい子がいるのですが、見学しても大丈夫でしょうか?

ぜひお子様連れでお越しください。お困りごとがありましたら、スタッフまでお気軽にお声がけください!

家づくりのことは何も決まっていなくて・・・。ただ見たいだけなんですが、それでも見学してもいいですか?

もちろん何も決まっていなくても大丈夫です!ぜひお気軽にお越しください!

しつこく営業されたら困るのですが・・・

無理な営業は致しませんので、ご安心ください!

近くに駐車場はありますか?

現地には駐車スペースもご用意していますので、お車でも気軽にご来場ください。

アクセス

その他

教養施設

商業施設

交通

基本物件概要 (分譲地)

分譲地名

栃木市運動公園東

所在地

栃木県栃木市川原田町字笹塚387番1外 (MAP)

交通

東武日光線「合戦場駅」から徒歩約20分(約1,500m~1,600m)

学区

吹上小学校/吹上中学校

総区画数

32区画

地目

宅地

用途地域

第一種低層住居専用地域

都市計画

市街化区域

道路

6.0m幅員アスファルト舗装

取引形態

売主

設備

市営水道・公共下水・東京電力・プロパンガス個別方式

権利(土地権利)

所有権

施工・設計会社名

株式会社ノーブルホーム

その他特記事項

・確定測量後
・建築条件付
・栃木市立地適正化計画 都市機能誘導区域外 居住誘導区域内
・区画No.9道路持分有り(建築面積対象外敷地)
・区画により電柱及び支線が設置される場合があります。
No.9・No.20・No.23・No.24・No.32 2025年12月16日価格改定

最終更新日

2026年4月15日

建売分譲住宅 (栃木市運動公園東 No.12)

販売価格

2,750万円(税込)

建ぺい率

40%

容積率

60%

土地面積

205.34m²(62.11坪)

建物面積

100.36m²(30.29坪)

間取

3LDK+畳コーナー

構造

木造二階建て集成ピン工法

建築確認番号

第25UD11S建04617号

建物完成時期

2026年5月

現況

引渡し可能日

相談

OTHER ESTATE

周辺の物件