• スーパー徒歩10分内
  • 国道6号線至近
  • 特設サイトあり

ノーブルガーデン金沢町4丁目

国道6号線至近で南北へのアクセス良好。車3台駐車可能な余裕のある敷地。

所在地

茨城県日立市金沢町4丁目 (MAP)

交通

JR常磐線「常陸多賀駅」まで約2,200m~2,300m(徒歩28分~29分)

小学校 /
中学校

金沢小学校/台原中学校

販売価格

2,990万円

販売棟数

1棟

総区画数

18区画

CONCEPT

コンセプト

茨城県北東部に位置し、太平洋に臨む日立市。
古くから工業地域として栄え、関連企業の従業員とその家族が数多く暮らしています。
市の中心部から南に約8.5kmにある金沢町は落ち着いた環境の住宅地で、
国道6号沿いにはスーパーや飲食店などの商業施設も立ち並ぶ、生活便利なエリアです。

  • 区画図・
    間取り

  • 周辺環境

  • 地図

  • 物件概要

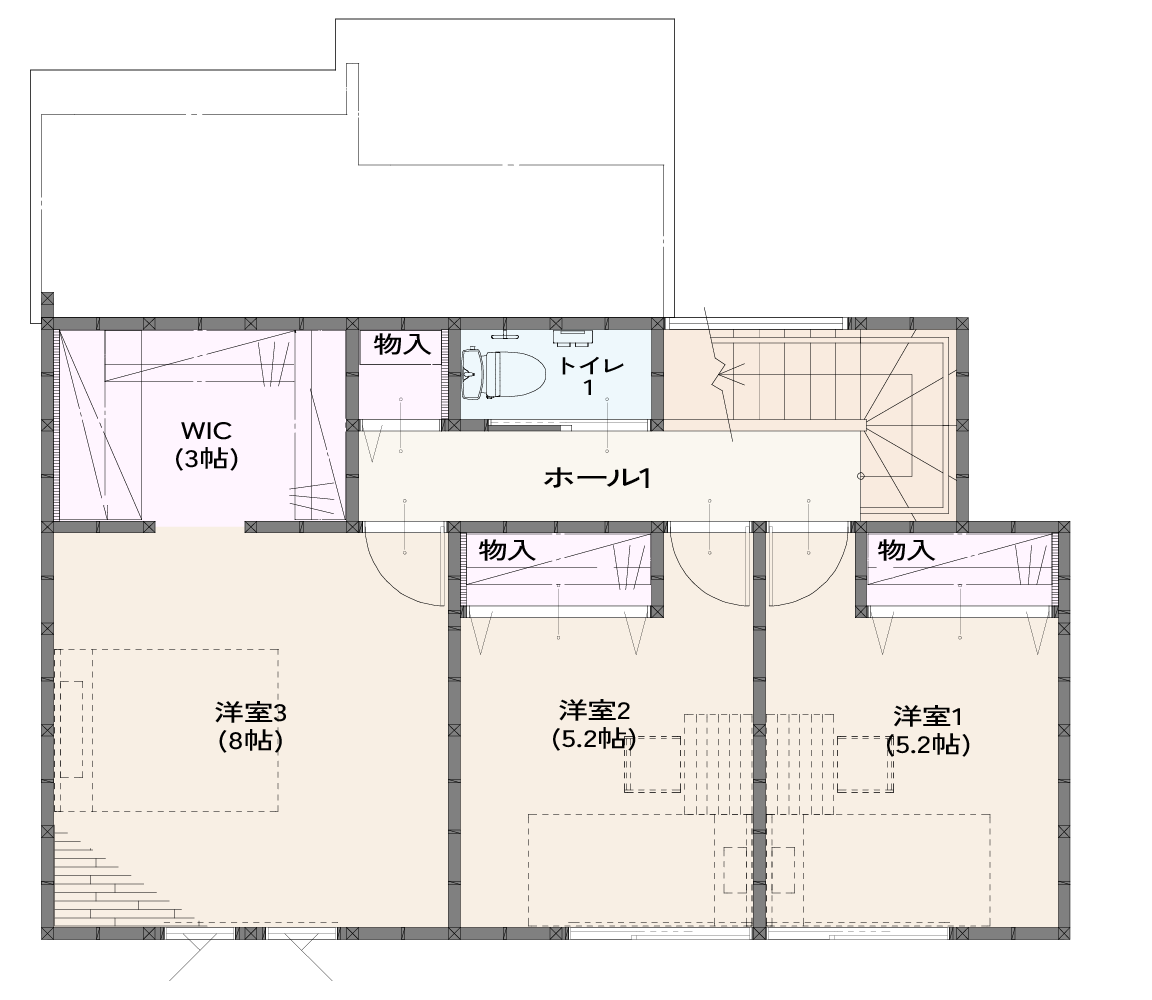
PLAN

区画図・間取り

LOCATION

周辺環境

  • 金沢小学校

    金沢小学校

    約1,000m〜約1,020m(徒歩 約12分〜13分)

  • 台原中学校

    台原中学校

    約1,200m〜約1,300m(徒歩 約5〜17分)

  • エコス 金沢店

    エコス 金沢店

    約500m〜約600m(徒歩 約7分〜8分)

  • カワチ薬品 大沼店

    カワチ薬品 大沼店

    約550m〜約580m(徒歩 約7分〜8分)

  • ウエルシア日立金沢店

    ウエルシア日立金沢店

    約550m~約650m (徒歩7分~9分)

  • 日立南太田IC

    日立南太田IC

    約7,800m(車 約18分)

ACCESS

地図

Overview

物件概要

所在地

茨城県日立市金沢町4丁目 (MAP)

交通

JR常磐線「常陸多賀駅」まで約2,200m~2,300m(徒歩28分~29分)

販売価格

2,990万円

土地面積

201.53m²(60.96坪)

建物面積

102.28m²(30.93坪)

学区

金沢小学校/台原中学校

総区画数

18区画

販売棟数

1棟

地目

宅地

用途地域

第一種中高層住居専用地域

都市計画

市街化区域

道路

2項道路 約3m/公道 約5m/開発道路 約6m

建ぺい率

60%

容積率

200%

設備

公営水道・東京電力・個別プロパン・公共下水

取引形態

販売提携

権利(土地権利)

所有権

施工・設計会社名

株式会社ノーブルホーム

その他特記事項

受益者負担金330円/㎡
別途、水道加入金が必要になります。
※図面と現況が異なる場合には、現況優先となります。

最終更新日

2025年12月24日

物件のご来場・お問い合わせ

ノーブルガーデン金沢町4丁目 No.7

お電話でのお問い合わせご相談はこちら

ノーブルホーム日立展示場

〒316-0022 茨城県日立市大沼町1-6-3 日立ハウジングステーション会場内(No.2)

0294-28-7700

AM9:30~PM5:30
水曜日 ※祝日は除く

OTHER ESTATE

周辺の物件