- 小学校徒歩10分内
- スーパー徒歩10分内
- 国道118号線至近
- 駅徒歩11分
ノーブルガーデン抽ヶ台南
大宮西小学校まで徒歩約7分。JR水郡線「常陸大宮駅」まで徒歩約11分。国道118号線至近で通勤にも生活にも便利なエリアです。
所在地
交通
水郡線「常陸大宮」駅まで約870m(徒歩11分)
小学校 /
中学校
大宮西小学校/大宮中学校
販売価格
2,950万円
販売棟数
1棟
総区画数
4区画
-
区画図・
間取り -
周辺環境
-
地図
-
物件概要
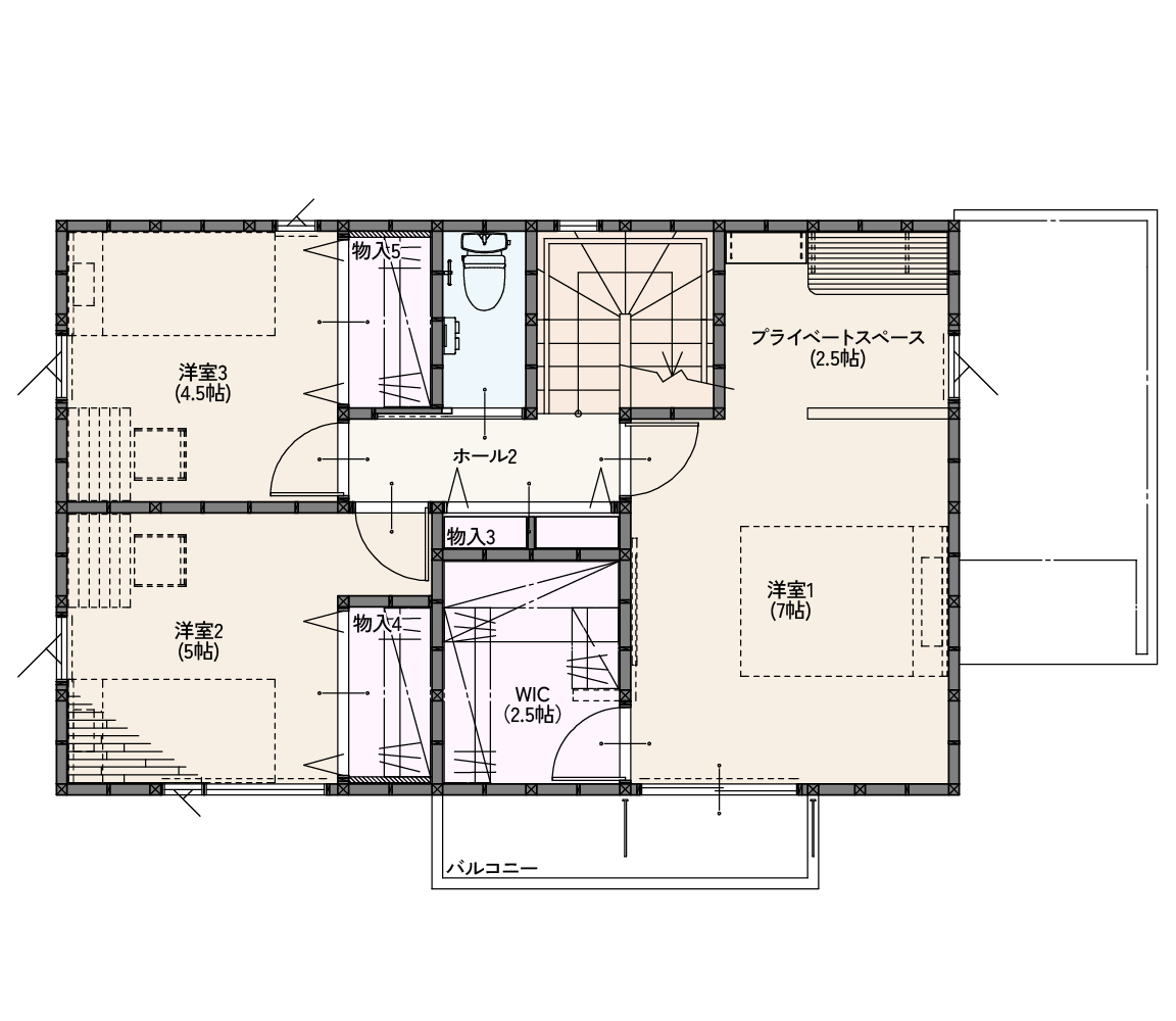
区画図・間取り
ノーブルガーデン抽ヶ台南 No.3
販売価格
2,950万円(税込)
この物件の
ポイント
【広々LDKと収納たっぷり!プライベートも家族時間も心地よく。】
1.広々LDK
19帖あるLDKは広々としていて家族みんながゆったり快適に過ごせます。
2.ランドリースペース
物干しワイヤー付きで、花粉の時期や天候を気にせず洗濯物を干せるうえ、カウンターでそのまま畳むこともできて便利です。
3.プライベートスペース
カウンター付きのプライベートスペースは、在宅ワークや趣味に最適。自分時間を快適に過ごせます。
4.各部屋収納
収納を設計する上で、重要なのは『適材適所』。玄関クロークやクローゼットなど、生活動線上に配置。
間取り
3LDK
土地面積
220.58m²(66.72坪)
建物面積
100.19m²(30.3坪)
構造
木造2階建て(在来工法)
現況
建築中
引渡し可能日
相談
建築確認番号
第2025CAー0681H号
周辺環境
-
大宮西小学校
約500m~約520m (徒歩7分~7分)
-
大宮中学校
約1,000m~約1,020m (徒歩13分~13分)
-
スーパーヒロセヤ常陸大宮店
約550m~約570m (徒歩7分~8分)
-
大宮聖愛保育園
約1,000m~約1,020m (徒歩13分~13分)
-
おかざき内科クリニック
約750m~約770m (徒歩10分~約10分)
-
クスリのカワダ南町店
約1,000m~約1,020m (徒歩13分~13分)
-
常陸大宮市図書情報館
約1,000m~約1,020m (徒歩13分~13分)
地図
物件概要
所在地
交通
水郡線「常陸大宮」駅まで約870m(徒歩11分)
販売価格
2,950万円
土地面積
220.58m²(66.72坪)
建物面積
100.19m²(30.3坪)
学区
大宮西小学校/大宮中学校
総区画数
4区画
販売棟数
1棟
地目
宅地
用途地域
第一種低層住居専用地域
都市計画
非線引区域
道路
位置指定道路 約5m
建ぺい率
40%
容積率
80%
設備
公営水道・東京電力・個別プロパン・公共下水
取引形態
売主
権利(土地権利)
所有権
施工・設計会社名
株式会社ノーブルホーム
その他特記事項
◎水道加入金
※位置指定道路 持分あり
※図面と現況が異なる場合には、現況優先となります。
最終更新日
2025年11月29日
物件のご来場・お問い合わせ
ノーブルガーデン抽ヶ台南 No.3
お電話でのお問い合わせご相談はこちら