- 街区内公園あり
ブリージア東海白方中央
スーパーやコンビニ、ドラックストア、飲食店が揃い生活の利便性が整ったエリア
所在地
交通
JR常磐線「東海駅」 約1,400m~約1,600m (徒歩18分~20分)
小学校 /
中学校
白方小学校/東海中学校
販売価格
3,435万円~3,555万円
販売棟数
4区画
総区画数
66区画
-
区画図・
間取り -
周辺環境
-
地図
-
物件概要
区画図・間取り
ブリージア東海白方中央 No.53
販売価格
3,555万円(税込)
この物件の
ポイント
1.「太陽光発電システム」6.900kw搭載
2.お靴を履いたまま出入りできる使い勝手の良い大容量クローク。普段は扉を閉めて生活感を隠せるため、玄関周りを美しく保てます。
3.広々とした20.5帖のLDKは、折上天井と間接照明が心地よい落ち着いた空間です。
4.人気のキッチン隣接ダイニング。移動を最小限に抑え、配膳から片付けまでスムーズに行えます。
5.洗面化粧台を脱衣所と分けた配置で、時間帯を問わず使いやすい設計です。
6.脱衣所には室内物干しを設け、雨の日や花粉の季節でも安心して洗濯物を干すことが出来ます。
間取り
3LDK
土地面積
213.58m²(64.6坪)
建物面積
105.16m²(31.8坪)
構造
木造2階建て(在来工法)
建物
完成時期
2026年9月
引渡し可能日
相談
建築確認番号
第2025CA-1737H号
ブリージア東海白方中央 No.54
販売価格
3,435万円(税込)
この物件の
ポイント
1.「太陽光発電システム」7.12kw搭載
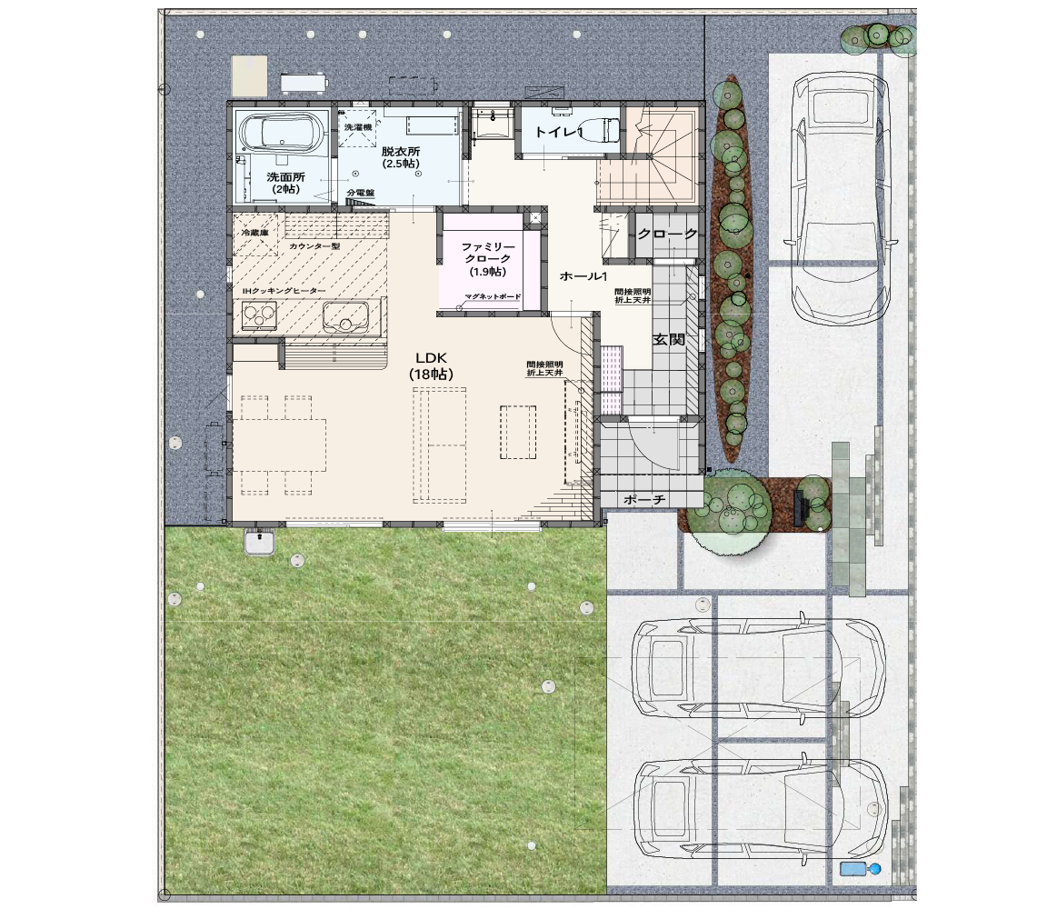
2.広々とした18帖のLDKは、折上天井と間接照明が心地よい落ち着いた空間です。
3.キッチン、パントリー、ランドリールームを一直線に配置したことで、家事動線がスムーズになり、毎日の行き来も快適に。
4.洗面化粧台をランドリールームと分けた配置で、時間帯を問わず使いやすい設計です。
5.ランドリールームには室内物干しを設け、雨の日や花粉の季節でも安心して洗濯物を干すことが出来ます。カウンターも備えているので、タオル類を畳む際にも便利です。
6.2階には2帖の納戸を設けており、家族で使う物もまとめて収納できます。
間取り
3SLDK
土地面積
211.95m²(64.11坪)
建物面積
105.99m²(32.05坪)
構造
木造2階建て(在来工法)
建物
完成時期
2026年9月
引渡し可能日
相談
建築確認番号
第2025CA‐1681号
周辺環境
-
JR常磐線「東海駅」
約1,400m~約1,600m (徒歩18分~20分)
-
東海村立図書館
約1,900m~約2,100m (徒歩24分~27分)
-
白方小学校
約1,500m~約1,700m (徒歩19分~22分)
-
東海中学校
約700m~約900m(徒歩9分~12分)
-
東海村立村松幼稚園
約260m~約400m(徒歩4分~5分)
-
ヨークベニマル東海村店
約850m~約1,050m(徒歩11分~14分)
-
ツルハドラッグ東海店
約850m~約1050m(徒歩11分~14分)
-
東原クリニック
約500m~約700m(徒歩7分~8分)
地図
物件概要
所在地
交通
JR常磐線「東海駅」 約1,400m~約1,600m (徒歩18分~20分)
販売価格
3,435万円~3,555万円
土地面積
211.95m²(64.11坪)~213.58m²(64.6坪)
建物面積
105.16m²(31.8坪)~105.99m²(32.05坪)
学区
白方小学校/東海中学校
総区画数
66区画
販売棟数
4区画
地目
宅地
用途地域
第一種低層住居専用地域
都市計画
市街化区域
道路
開発道路 約6m
建ぺい率
40%
容積率
80%
設備
公営水道・東京電力・個別プロパン・公共下水
取引形態
売主
権利(土地権利)
所有権
施工・設計会社名
株式会社ノーブルホーム
その他特記事項
◎水道加入金
※まちなみガイドラインあり
※図面と現況が異なる場合には、現況優先となります。
※司法書士は売主指定になります。
最終更新日
2026年4月15日
物件のご来場・お問い合わせ
ブリージア東海白方中央 No.54
お電話でのお問い合わせご相談はこちら