- 小学校 徒歩10分以内
ノーブルガーデン常陸大宮市下町
JR「常陸大宮駅」まで徒歩5分で、 通勤通学に便利な住環境。さらに駅を中心とした街づくりが進行中でより快適に。
所在地
交通
JR水郡線「常陸大宮駅」まで約350m(徒歩5分)
小学校 /
中学校
大宮小学校/大宮中学校
販売価格
2980万円~ 2980万円
販売棟数
2棟
総区画数
33区画
-
区画図・
間取り -
周辺環境
-
地図
-
物件概要
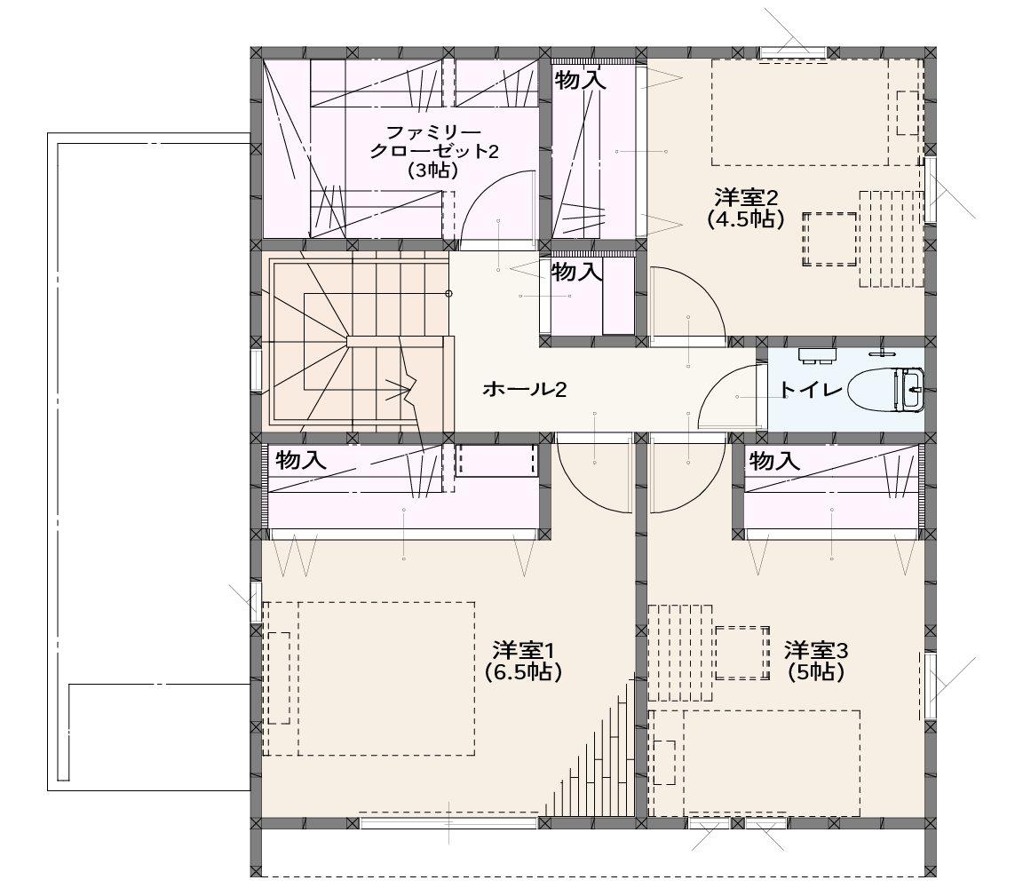
区画図・間取り
ノーブルガーデン常陸大宮下町 No.2
販売価格
2980万円(税込)
お支払い例
建物
土地
月々支払い53,826円
※ローン概要:取扱金融機関/常陽銀行、返済方法/変動金利、/返済期間40年、借入金利/0.825%、融資期間40年、金利は実際に融資が実行される月の金利となります。金利は変わることがあります。ボーナス(¥102,908 年2回加算)を含む、融資手数料等、別途諸費用が必要になります。詳しくは店舗までお問合せ下さい。上記融資条件及び金利は令和8年4月時点のものです。
この物件の
ポイント
【家事ラク設計・収納充実で毎日の生活にゆとりを生む住まい】
1.キッチンとランドリールームが隣接しているため家事動線がコンパクト
2.リビング階段で家族の存在をより身近に感じることができます
3.各部屋収納完備+ファミリークローゼットで収納充実
4.太陽光搭載のオール電化
間取り
3LDK
土地面積
215.88m²(65.3坪)
建物面積
101.85m²(30.8坪)
構造
木造2階建て(在来工法)
現況
完成済
建物
完成時期
2026年3月
引渡し可能日
相談
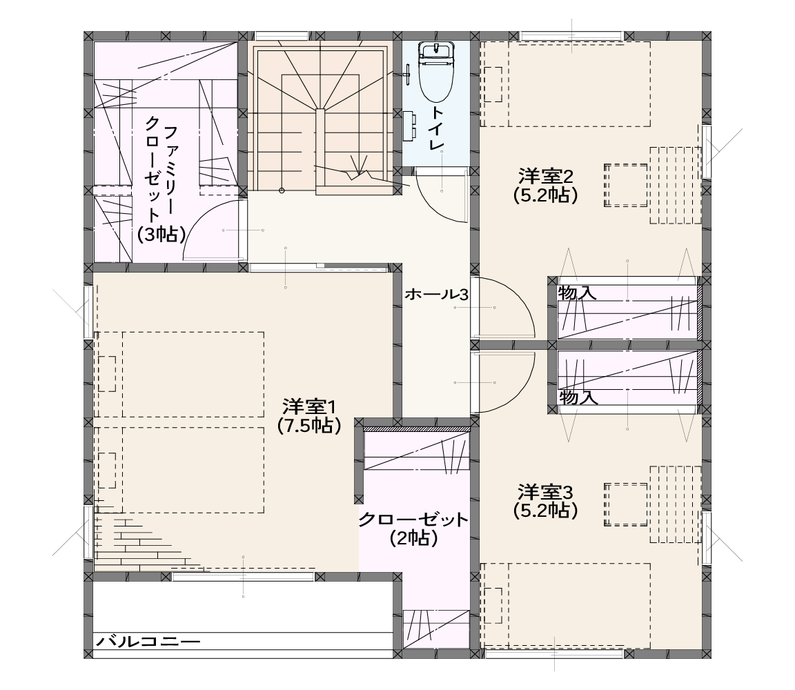
ノーブルガーデン常陸大宮下町 No3
販売価格
2,980万円(税込)
お支払い例
建物
土地
月々支払い53,826円
※ローン概要:取扱金融機関/常陽銀行、返済方法/変動金利、/返済期間40年、借入金利/0.825%、融資期間40年、金利は実際に融資が実行される月の金利となります。金利は変わることがあります。ボーナス(¥102,908 年2回加算)を含む、融資手数料等、別途諸費用が必要になります。詳しくは店舗までお問合せ下さい。上記融資条件及び金利は令和8年4月時点のものです。
この物件の
ポイント
【回遊動線で生活にゆとりをプラス 家族時間を大切にできる住まい】
1.回遊動線のランドリールームで、帰宅後お風呂まで一直線
2.リビング階段で家族の存在をより身近に感じることができます
3.各部屋収納完備+ファミリークローゼットで収納充実
4.太陽光搭載のオール電化
間取り
3LDK
土地面積
215.25m²(65.11坪)
建物面積
102.67m²(31.05坪)
構造
木造2階建て(在来工法)
現況
完成済
建物
完成時期
2026年3月
引渡し可能日
相談
周辺環境
-
大宮小学校
約550m~700m(徒歩7分~9分)
-
大宮中学校
約1,800m~1,900m(徒歩23分~24分)
-
スーパーヒロセヤ 大宮店
約850m~1,000m(徒歩11分~13分)
-
志村大宮病院
約250m~400m(徒歩4分~5分)
-
大宮みのり保育園
約2,100m~2,200m(徒歩26分~28分)
-
ワンダーグー常陸大宮店
約1,200m~1,400m(徒歩15分~17分)
-
ヨークベニマル常陸大宮店
約2,300m~2,400m(徒歩29分~30分)
地図
物件概要
所在地
交通
JR水郡線「常陸大宮駅」まで約350m(徒歩5分)
販売価格
2980万円~ 2980万円
土地面積
215.25m²(65.11坪)~215.88m²(65.3坪)
建物面積
101.85m²(30.8坪)~102.67m²(31.05坪)
学区
大宮小学校/大宮中学校
総区画数
33区画
販売棟数
2棟
地目
宅地
用途地域
第一種住居地域
都市計画
非線引区域
道路
公道約10m、開発道路約6m
建ぺい率
60%
容積率
200%
設備
公営水道・東京電力・個別プロパン・公共下水
取引形態
売主
権利(土地権利)
所有権
施工・設計会社名
株式会社ノーブルホーム
その他特記事項
◎水道加入金あり
※図面と現況が異なる場合には、現況優先となります。
最終更新日
2026年4月9日
物件のご来場・お問い合わせ
ノーブルガーデン常陸大宮下町 No3
お電話でのお問い合わせご相談はこちら