• 駅徒歩12分
  • 国道349号線至近
  • 国道293号線至近
  • 大型分譲地
  • 特設サイトあり

ノーブルガーデン常陸太田・山下町

スーパーやドラックストア近く買い物便利◎

所在地

茨城県常陸太田市山下町字水門下 (MAP)

交通

JR水郡線「常陸太田駅」まで約750m~約950m(徒歩10分~12分)

小学校 /
中学校

太田小学校/太田中学校

販売価格

2,980万円

販売棟数

1棟

総区画数

31区画

CONCEPT

コンセプト

  • 区画図・
    間取り

  • 周辺環境

  • 地図

  • 物件概要

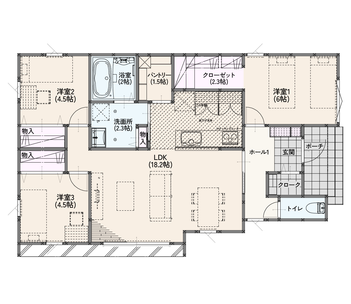
PLAN

区画図・間取り

LOCATION

周辺環境

  • 太田小学校

    太田小学校

    約2,400m~約2,600m (徒歩30分~33分)

  • 太田中学校

    太田中学校

    約2,800m~約3,000m (徒歩35分~38分)

  • かわねや木崎本店

    かわねや木崎本店

    約900m~約1,100m (徒歩12分~14分)

  • カワチ薬局常陸太田店

    カワチ薬局常陸太田店

    約400m~約600m (徒歩5分~8分)

  • ひたちの中央クリニック

    約1,000m~約1,200m (徒歩13分~15分)

  • 常陸太田駅郵便局

    約600m~約800m (徒歩8分~10分)

ACCESS

地図

Overview

物件概要

所在地

茨城県常陸太田市山下町字水門下 (MAP)

交通

JR水郡線「常陸太田駅」まで約750m~約950m(徒歩10分~12分)

販売価格

2,980万円

土地面積

219.48m²(66.39坪)

建物面積

80.94m²(24.48坪)

学区

太田小学校/太田中学校

総区画数

31区画

販売棟数

1棟

地目

宅地

用途地域

第一種低層住居専用地域

都市計画

市街化区域

道路

開発道路 約6m

建ぺい率

40%

容積率

80%

設備

公営水道・東京電力・個別プロパン・公共下水

取引形態

売主

権利(土地権利)

所有権

施工・設計会社名

株式会社ノーブルホーム

その他特記事項

◎受益者負担金 490円/㎡
◎水道加入金
※ごみ集積所 持分あり
※街並み規定 あり
※図面と現況が異なる場合には、現況優先となります。

最終更新日

2025年11月29日

物件のご来場・お問い合わせ

ノーブルガーデン常陸太田・山下町 No.25

お電話でのお問い合わせご相談はこちら

ノーブルホーム那珂展示場

〒 311-0105 那珂市菅谷686-3

029-353-2075

AM9:30~PM5:30
水曜日 ※祝日は除く

OTHER ESTATE

周辺の物件