House Plan 家のプランニング

家族の暮らしを
オーダーメイドでつくるなら
こんな家、こんな暮らし、
どうですか?

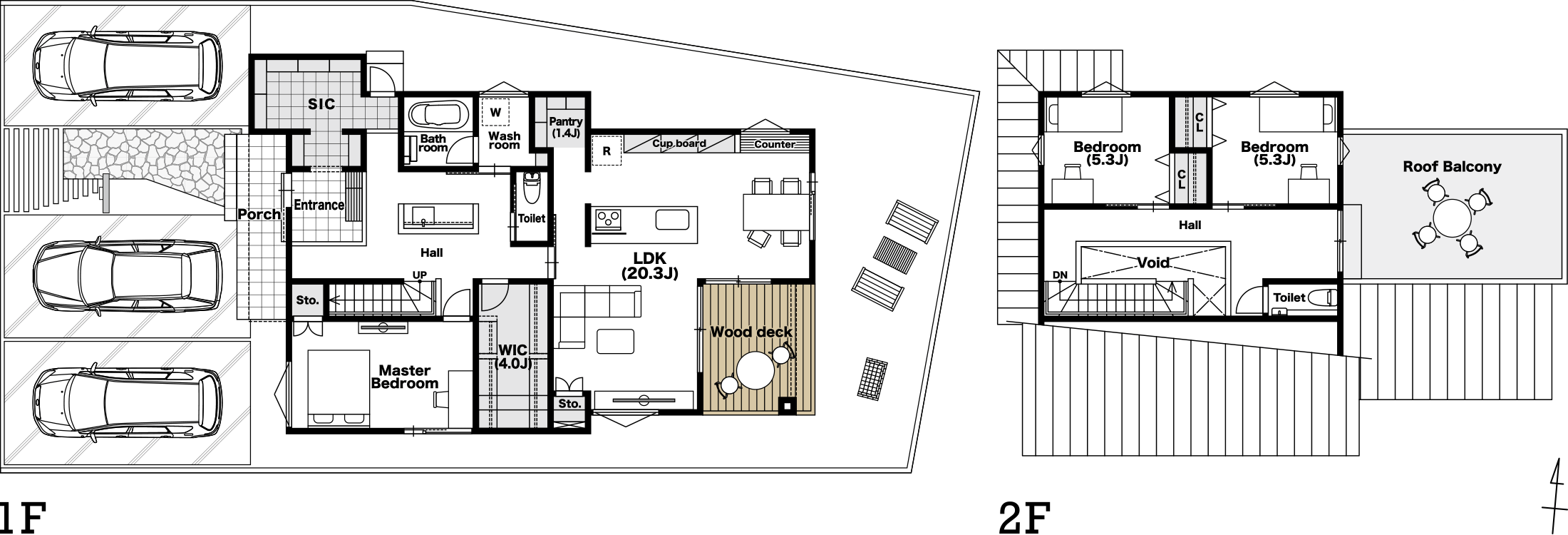
House Plan 01

No.9推奨プラン

外のように思いっきり遊ぶ
「おうちキャンプ」

東側に視線が抜けるためウッドデッキとルーフバルコニーを大胆に設置。プール遊びやBBQを爽快なロケーションで思いっきり楽しめます。アウトドア派のご家族のために、家の玄関やシューズインクロークは超特大仕様で設計。

3LDK

+ シューズインクローク + ホール + パントリー
+ ウォークインクローゼット + カウンター
+ ウッドデッキ + ルーフバルコニー
Data

敷地面積 / 250.92㎡(75.90坪)
延床面積 / 127.10㎡(38.45坪)

1階 / 91.50㎡(27.68坪)
2階 / 35.60㎡(10.77坪)

  • 1
    超特大仕様のシューズインクローク。自転車、ゴルフバック、ベビーカー、キャンプグッズを丸々収納。
  • 2
    洗面カウンターを中心に回遊できるエントランス&ホール。モノを広げたり、多様用途に使える空間。
  • 3
    玄関・主寝室・キッチンの中央にあるためさまざまな使い方ができる大容量ウォークインクローゼット。
  • 4
    キッチンの右手にはパントリー、左手にはカウンター。暮らしの可能性が広がるアイライド型キッチン。
  • 5
    コンパクトながら南東の屋根付きウッドデッキは一年中使える優れもの。さぁ、暮らしをエンジョイ!
  • 6
    広さと眺望を兼ね備えた屋上空間。子どものプール遊びや日光浴など人目を気にせずに満喫できます。
このマークにタッチすると間取りの解説が出てきます。
  • Living

    東側からの穏やかな陽光が差し込む気持ちの良いリビング。20帖超のLDKは、ウッドデッキも相まって体感値は30帖超。

  • Kitchen

    キッチンの右手にはパントリー、左手にはカウンター。暮らしの可能性が広がるアイライド型キッチン。キッチンからの眺めも最高です。

  • Wood deck

    南東の屋根付きウッドデッキは一年中使える優れもの。ウッドデッキに腰掛けて、家族みんなでおうちキャンプをエンジョイ!

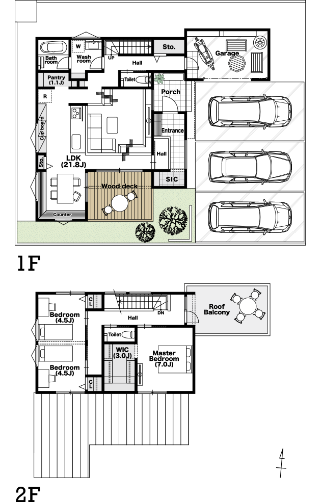
House Plan 02

No.28推奨プラン

新しい毎日を生み出す
「家事ラク動線」

キッチンと洗面室が隣り合う効率的な動線の平屋の家。ワークカウンター・室内干しスペース・リネン庫・キッチン収納など、ママの笑顔が溢れるアイデアが満載。ウッドデッキ&LDK20.5帖と暮らしの広さもしっかり。

3LDK

+ シューズインクローク + ウッドデッキ
+ 洗面室のワークカウンター + リネン庫
+ ウォークインクローゼット
Data

敷地面積 / 222.47㎡(67.29坪)
延床面積 /89.84㎡(27.17坪)

  • 1
    大容量のシューズインクロークを設けた玄関。ゴルフバック、ベビーカーなどもラクラク収納できます。
  • 2
    水まわりを近づけた効率的な動線。散りばめられた暮らしの機能が、毎日の家事をラクにしてくれます。
  • 3
    平屋ならではの高さのある天井が特別な空間を演出。さらに20.5帖の広さが頼もしく嬉しい空間。
  • 4
    リビングの前面いっぱいに配置したウッドデッキ&ガーデン。家族みんなで思いっきり楽しめる空間です。
  • 5
    将来、間仕切って使える10.6帖の居室。子どもが小さいうちは夫婦の趣味のスペースとして使えます。
  • 6
    広々2.3帖のウォークインクローゼットがついた主寝室。爽やかであたたかな陽光が差し込みます。
このマークにタッチすると間取りの解説が出てきます。
  • LDK

    平屋ならではの高さのある天井と陽光が差し込むウッドデッキが憩いの空間を特別に演出。さらに20.5帖という広々空間です。

  • View of life

    家事の要、そして家族が集うキッチン&ダイニングを中心に空間を構成。キッチンの目の前には心地よい暮らしのシーンが広がります。

  • Wood deck

    リビングの前面に配置した南面ウッドデッキ&ガーデン。BBQやプール遊びなど家族みんなで思いっきり楽しめる空間です。

House Plan 03

No.31推奨プラン

家族みんな長居したくなる
「大空間リビング」

広さに特化するだけではなく、プレイロット、外から視線が入らないウッドデッキとタイルのテラス、20帖超のLDKに大きな吹き抜けをプランニング。暮らしの用途に合わせて使い分けられるワクワクするような空間をご用意。

3LDK

+ シューズインクローク + ランドリーカウンター
+ ファミリークローゼット + パントリー
+ プレイロット + ウォークインクローゼット
+ 吹き抜け + ウッドデッキ & テラス
Data

敷地面積 / 221.40㎡(66.97坪)
延床面積 / 115.93㎡(34.87坪)

1階 / 73.70㎡(22.10坪)
2階 / 42.23㎡(12.77坪)

  • 1
    シューズインクロークと洗面台を設けた玄関スペース。さらに洗面所からの動線が暮らしの時短に貢献。
  • 2
    趣味や子どもの遊び場として使える空間。一段高くなり腰掛けられるため大人数でのパーティでも活躍。
  • 3
    洗面所とキッチンの間に設けたファミリークローゼット。水まわり関係のアイテムをまとめて収納。
  • 4
    1階全体を見渡せるパントリー付きの広々キッチン。目の前に広い住空間と家族のシーンが広がります。
  • 5
    リビングの上部が吹き抜けとなる開放感抜群の空間。家族や友人とゆったり語らえる場所です。
  • 6
    用途によって使い分けができる2つのデッキがある外空間。外からの視線が入らないプライベート仕様。
  • 7
    7帖のゆったりとした主寝室。ウォークインクローゼットと南面バルコニーが付いた贅沢な仕様です。
このマークにタッチすると間取りの解説が出てきます。
  • Living

    リビングの上部が吹き抜けとなる開放感抜群の空間。一段高くなった床や階段に腰掛けて、家族や友人とゆったり語らえる場所です。

  • Play lot

    趣味や子どもの遊び場など様々な使い方ができるマルチな空間。子どものいる家族が集まってパーティをする際などにも活躍します。

  • LDK

    1階フロア全体を見渡せるパントリー付きの広々キッチン。目の前に広い住空間とテラススペース、そして家族のシーンが広がります。

House Plan 04

No.13推奨プラン

自分と家族と仲間と語る
「おうちベース」

家を家族の秘密基地に見立てプランニング。正面ではなく横から入る玄関にはじまり、2段下がったリビングやカウンターに囲まれたダイニング、庇のあるウッドデッキにガレージ&ルーフバルコニー。家族で籠る場所がたっぷり。

3LDK

+ ガレージ + シューズクローク + パントリー
+ L字カウンター + ウッドデッキ
+ ウォークインクローゼット + ルーフバルコニー
Data

敷地面積 / 216.00㎡(65.34坪)
延床面積 / 124.21㎡(37.56坪)

1階 / 77.01㎡(23.29坪)
2階 / 47.20㎡(14.27坪)

  • 1
    L字のカウンターで囲まれた家族の食堂は、ウッドデッキから光が差し込みいつも明るく温かな空間。
  • 2
    ベースフロアから2段下がったリビング。4方が囲われた空間は、家族が長居したくなる特別な場所。
  • 3
    3方が建物に囲まれることでプライベート感のあるウッドデッキ。さらに嬉しい庇付きで重宝します。
  • 4
    外から家の中が見えないデザインの玄関。コンパクトながら土間タイプの収納が機能的です。
  • 5
    駐車場を見渡せるコクピットのようなガレージ。機械いじりにDIY、シアタールームにするなど自由自在。
  • 6
    将来的に間仕切って使える9帖の居室。子どもが小さいうちは夫婦のアトリエとして使えます。
  • 7
    3方に開放感を持たせた屋上空間。子どものプール遊びや日光浴など人目を気にせずに満喫できます。
このマークにタッチすると間取りの解説が出てきます。
  • Living

    ベースフロアから2段下がったリビングは、4方が囲われ籠り感があります。家族が長居したくなる特別な場所になるはずです。

  • Kitchen
    & Dining

    ゆったりとしたキッチンの先にあるL字のカウンターで囲まれたダイニングは、ウッドデッキから光が差し込みいつも明るく温かな空間。

  • Wood deck

    3方が建物に囲まれることでプライベート感のあるウッドデッキ。さらに嬉しい庇付きで、休日にはソトご飯を家族で楽しもう。