ノーブルガーデン六ツ野7期
区画整理進行中の新しい街並み
所在地
交通
JR常磐線「勝田駅」まで約2,800~約2,850(車で7分~8分)※実測による
小学校 /
中学校
外野小学校/大島中学校
販売価格
3,290万円~3,620万円
販売棟数
1棟
総区画数
5区画
-
区画図・
間取り -
周辺環境
-
地図
-
物件概要
区画図・間取り
ノーブルガーデン六ツ野7期 No.5
販売価格
3,620万円(税込)
この物件の
ポイント
1. 「太陽光発電システム」6.64kw搭載
2. リビングにつながる半屋外サービスヤード。洗濯物干しやアウトドア用品の収納など、使い方は無限大です。
3. リビングのスタディカウンターには、引き出し付きのマージンキャビネットを採用。宿題やお絵描き、PC作業など多目的に活用でき、家事をしながら見守れる安心の空間です。
4. 造作洗面台は幅165cmのゆったり設計で、二人並んでも快適にご利用いただけます。
5. 木目の温もりに、グレーとブラックのトーンを合わせ、落ち着きと品格を感じるホテルライクなインテリアです。
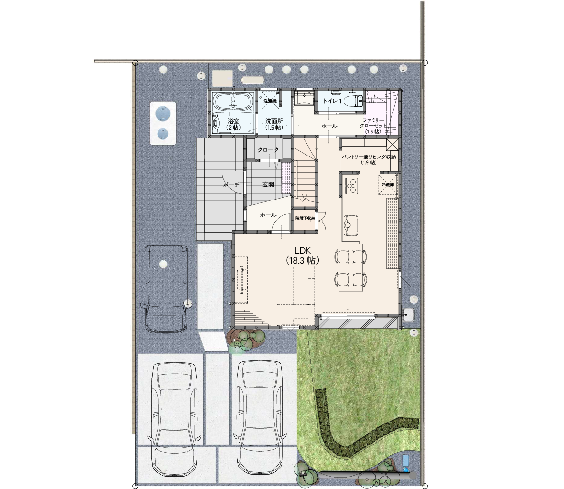
間取り
3LDK
土地面積
182m²(55.05坪)
建物面積
101.02m²(30.55坪)
構造
木造2階建て(集成ピン工法)
現況
完成済
建物
完成時期
2026年1月
引渡し可能日
相談
ノーブルガーデン六ツ野7期 No.3
販売価格
3,290万円(税込)
お支払い例
建物
土地
月々支払い61,166円
※ローン概要:取扱金融機関/常陽銀行、返済方法/変動金利、/返済期間40年、借入金利/0.825%、融資期間40年、金利は実際に融資が実行される月の金利となります。金利は変わることがあります。ボーナス(¥102,908 年2回加算)を含む、融資手数料等、別途諸費用が必要になります。詳しくは店舗までお問合せ下さい。上記融資条件及び金利は令和8年4月時点のものです。
この物件の
ポイント
【家族のコミュニケーションと 家事効率の両方が叶う住まい】
1.対面式キッチン
2.広々LDK
3.各部屋収納
4.インナーバルコニー
間取り
3SLDK
土地面積
182m²(55.05坪)
建物面積
111.16m²(33.62坪)
構造
木造2階建て(在来工法)
現況
完成済
建物
完成時期
2025年6月
引渡し可能日
相談
周辺環境
-
外野小学校
約750m~約800m(徒歩10分)
-
大島中学校
約1,200m~約1,250m(徒歩15分~16分)
-
カスミフードスクエアひたちなか笹野店
約1,600m~約1,650m(徒歩20分~21分)
-
ウエルシアひたちなか六ツ野店
約1,000m~約1,050m(徒歩13分~14分)
-
クスリのアオキ高場店
約650m~約700m (徒歩9分)
-
ますおか内科クリニック
約750m~約800m (徒歩10分)
-
ヒロ歯科クリニック
約850m~約900m (徒歩11分~12分)
地図
物件概要
所在地
交通
JR常磐線「勝田駅」まで約2,800~約2,850(車で7分~8分)※実測による
販売価格
3,290万円~3,620万円
土地面積
182m²(55.05坪)
建物面積
101.02m²(30.55坪)~111.16m²(33.62坪)
学区
外野小学校/大島中学校
総区画数
5区画
販売棟数
1棟
地目
畑・山林
用途地域
第一種住居地域
都市計画
市街化区域
道路
公道 約6m~約16m
建ぺい率
60%
容積率
200%
設備
公営水道・東京電力・個別プロパン・合併浄化槽
取引形態
売主
権利(土地権利)
所有権
施工・設計会社名
株式会社ノーブルホーム
その他特記事項
◎水道加入金
※農地転用を要します。
※地区計画あり
※令和8年度 公共下水整備予定
※図面と現況が異なる場合には、現況優先となります。
最終更新日
2026年4月9日
物件のご来場・お問い合わせ
ノーブルガーデン六ツ野7期 No.3
お電話でのお問い合わせご相談はこちら