- 都市ガス
- 小学校徒歩10分内
- 中学校徒歩10分内
- スーパー徒歩10分内
- 特設サイトあり
ノーブルガーデン浜田小南2期
水戸駅行きのバス停まで約3分。東京駅まで特急で約76分。 都心への通勤・通学も可能な立地です。 歴史と都市機能が共存する街。
所在地
カーナビアドレス
茨城県水戸市酒門町4855−2
(※現地は上記付近となります。機種により対応できない場合がございます。)
交通
JR常磐線「水戸駅」まで 約2,700m~約2,800m (徒歩34分~35分)
小学校 /
中学校
浜田小学校/水戸市立第三中学校
販売価格
3,280万円~3,360万円
販売棟数
2棟
総区画数
19区画

コンセプト
人が輝き 暮らしが輝く 街が輝き 住まいが輝く ここは私たち家族が輝ける場所
充実した街だから イキイキとした大切な家族の時間が過ごせます。
輝きある街だから 自然と笑顔が増え 心も豊かに過ごせます。
ここは私たち家族がキラキラと輝ける人生のステージです。
爽やかな空気と美しく輝く湖を望みながら過ごす幸せな家族の休日。
四季の移ろいを感じる憩いのひととき。
そんな時間がここにあります。
-
区画図・
間取り -
周辺環境
-
地図
-
物件概要

区画図・間取り
ノーブルガーデン浜田小南2期 No.18
販売価格
3,360万円(税込)
この物件の
ポイント
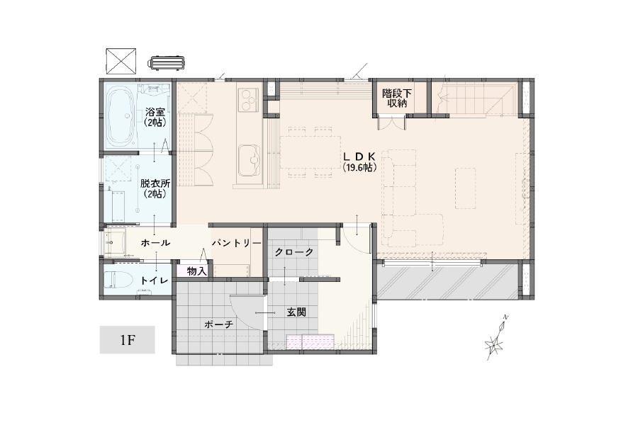
【ファミリークローゼットと各所に設けられた収納スペースが充実したプラン】
浜田小学校・第三中学校まで徒歩10分圏内で、お子様の通学も安心。
ヨークベニマル水戸浜田店や丹野病院も徒歩圏内に位置しており利便性の高いエリアです。
◎収納力抜群なパントリー
◎ファミリークローゼット
◎3帖のウォークインクローゼット
◎長く安心が続きます【住宅設備保証10年】

間取り
3LDK
土地面積
250.41m²(75.75坪)
建物面積
107.65m²(32.56坪)
構造
木造軸組みパネル併用工法2階建
現況
完成済
建物
完成時期
2024年4月
引渡し可能日
相談
建築確認番号
第2023CA-1300H号

ノーブルガーデン浜田小南2期 No.25
販売価格
3,280万円(税込)
この物件の
ポイント
【人気の平屋!家族時間が増えるくつろぎの住まい。】
浜田小学校・第三中学校まで徒歩10分圏内で、お子様の通学も安心。
ヨークベニマル水戸浜田店や丹野病院も徒歩圏内に位置しており利便性の高いエリアです。
【キッチンをぐるりと回れる回遊動線】
キッチンにいながら、リビングを見渡すことができたり、浴室の様子を伺うこともできます。
【家事動線と合わせた一直線の収納動線】
洗面・浴室の水回り近くにファミリークローゼット・パントリーがある事で外出前・帰宅後の動線がスムーズに。
【各部屋収納】
収納を設計する上で、重要なのは『適材適所』。玄関クロークやクローゼットなど、生活動線上に配置。
【コミュニケーションが広がるリビング】
玄関・水回り・各居室の中心にあるリビング。自然と集まり会話がある動線としました。

間取り
3LDK
土地面積
250.7m²(75.84坪)
建物面積
88.19m²(26.67坪)
構造
木造平屋建て(在来工法)
現況
建築中
建物
完成時期
2025年7月
引渡し可能日
相談
建築確認番号
R06A確済M0318


周辺環境
-
浜田小学校
約450m~約700m(徒歩6〜9分)
-
水戸市立第三中学校
約550m~約800m(徒歩7〜10分)
-
ヨークベニマル水戸浜田店
約500m~約750m(徒歩7〜10分)
-
丹野病院
約250m~約500m(徒歩4〜7分)
-
JR水戸駅
約2,400m~2,800m(徒歩30〜35分)

地図

物件概要
所在地
交通
JR常磐線「水戸駅」まで 約2,700m~約2,800m (徒歩34分~35分)
販売価格
3,280万円~3,360万円
土地面積
250.41m²(75.75坪)~250.7m²(75.84坪)
建物面積
88.19m²(26.67坪)~107.65m²(32.56坪)
学区
浜田小学校/水戸市立第三中学校
総区画数
19区画
販売棟数
2棟
地目
宅地
用途地域
指定なし
都市計画
市街化調整区域
道路
開発道路 約6m
建ぺい率
60%
容積率
200%
設備
都市ガス・東京電力・公営水道・公共下水
取引形態
販売提携
権利(土地権利)
所有権
施工・設計会社名
株式会社ノーブルホーム
その他特記事項
受益者負担金 320円/㎡
水道加入金
設備負担金 100㎡あたり7,913円
◎子育てエコホーム支援事業対象物件(No.18)
都市ガス配管工事費 9,900円
※ごみ集積所持分あり
※子育てエコホーム支援事業に関して詳しくは各営業担当までお問い合わせください。
★売建プランあり
最終更新日
2025年10月13日
物件のご来場・お問い合わせ
ノーブルガーデン浜田小南2期 No.25
お電話でのお問い合わせご相談はこちら