- 都市ガス
- 街区内公園あり
- 小学校徒歩10分内
- 中学校徒歩10分内
ノーブルガーデン笠原3期
人気の笠原エリア!全区画75坪超の大規模分譲地。茨城県庁まで車で約5分!※実測による
所在地
交通
JR常磐線「水戸駅」まで約4,900m~約5,000m(車で13分)※実測による
小学校 /
中学校
水戸市立笠原小学校/水戸市立笠原中学校
販売価格
5,400万円~6,250万円
販売棟数
4棟
総区画数
36区画
-
区画図・
間取り -
周辺環境
-
地図
-
物件概要

区画図・間取り
ノーブルガーデン笠原3期 No.16
販売価格
5,300万円(税込)
この物件の
ポイント
- ココロが自然と満ちていく和の家 -
●長居したくなる居心地の良さをつくる
その空間の居心地の良さをつくる要素のひとつに、光の量や種類、陰の在り方などがあります。LDKに差し込む光をコントロールし、長居したくなるような居心地の良さをデザインしています。
●建物に奥行きを生み出す新旧の融合
玄関扉の手前に、重厚感のあるアンティークの扉を設え、二重扉にしています。その間には何とも不思議な和の空間が存在します。
●隙間から入ってくる外の灯りを演出
屋根のような形をした天井の上部に照明を設え、外の光が入ってきているかのような灯りをつくりました。室内にいながらも自然(月光や外)を感じられる、そんな趣をデザインしています。
●日本人が持つ上質感の追求
土や木など自然素材でつくられた器で食事をすると、美味しく感じる人は少なくありません。私たちが潜在的に持っている上質のカタチを、毎日集まる家族の食卓に散りばめています。

間取り
3LDK
土地面積
261.25m²(79.03坪)
建物面積
122.55m²(37.06坪)
構造
木造2階建て(在来工法)
建物
完成時期
完成済
引渡し可能日
相談
建築確認番号
R05A確済T0050号

ノーブルガーデン笠原3期 No.17
販売価格
5,780万円(税込)
この物件の
ポイント
- 愛するものに触れて暮らす平屋の家 -
●明るい中庭が毎朝出迎えてくれる
各居室を出てLDKに入ってくると、明るさと共に視線の先に広がるのは中庭とガレージ。ダークトーンの室内から眺める白と緑の外空間は、毎朝やさしく頭と身体を起こしてくれます。
●LDKの「陰(落ち着き)」を演出
ブラックとウォールナットのコーディネートが落ち着きを生み出すダイニングキッチン。ペンダントライトの灯りが良く似合います。
●LDKの「陽(ぬくもり)」を演出
日向のような暖かさではなく、じわっとぬくもりを感じられる場所。東面から朝日が差し込み、南面から陽光が降り注ぐ。そして夜は凹凸のある壁面に流れ落ちる間接照明の灯りを愉しめます。
●一日中やさしさに包まれる
リラックス感を意識し、LDKは室内の明るさを極力しぼった照明計画に。昼間は心地よい外からの光に包まれ、夜は壁面を流れる間接照明とペンダントライトに癒されます。
●屋外用のタイルを玄関に敷き詰める
玄関からLDKに向かうまでの動線は、少し幅の細い廊下と、中庭のタイルデッキをイメージした土間があります。共通の素材を採用することで、ソトからウチへの緩やかなつながりを感じます。

間取り
3LDK
土地面積
260.91m²(78.93坪)
建物面積
99.99m²(30.24坪)
構造
JーWOOD工法
建物
完成時期
完成済み
引渡し可能日
相談
建築確認番号
R05A確済M0131号

ノーブルガーデン笠原3期 No.18
販売価格
6,250万円(税込)
この物件の
ポイント
- 「食」から上質な憩いの時間が生まれる家 -
●追求したのは圧倒的な開放感
室内に静かにそびえ立つ壁と、幅の広い黒い窓枠、モノトーンで統一されたキッチンや照明、そこに無垢のフローリングがほんのり温もりを与えます。広さと高さだけではない開放空間が広がります。
●入ってすぐに期待感が高まる
吹き抜けのホールに立ち上がる壁と、黒のスケルトン階段。そしてどこまでも広がるフローリングは、まるでレストランや美術館。
●曖昧な空間で過ごす楽しい時間
パントリー(バックヤード)からシェア空間に向かって段階的に明るさと高さが広がるデザイン。大きな窓から陽光が差し込み、室内と外との狭間にいるような楽しいダイニングキッチンです。
●料理を自分らしく、もっと楽しく
手間をかけた料理にも挑戦していただくために、ワークスペースを広く、そして料理の色が映えるようにカラーコーディネート。料理をしながらリビングやホール、2階を見渡せるのもポイントです。
●家の中にあるソトという間取り
建物の北東角に設けた中庭。外からの視線が入らない、青い空と陽光だけが静かに差し込む空間です。美術館の中庭のような空間で、贅沢な読書タイムや、親子・ペットとの楽しい時間が過ごせます。

間取り
3LDK
土地面積
260.05m²(78.67坪)
建物面積
129.38m²(39.13坪)
現況
完成済
建物
完成時期
完成済
引渡し可能日
相談
建築確認番号
第2023CA-0108H号

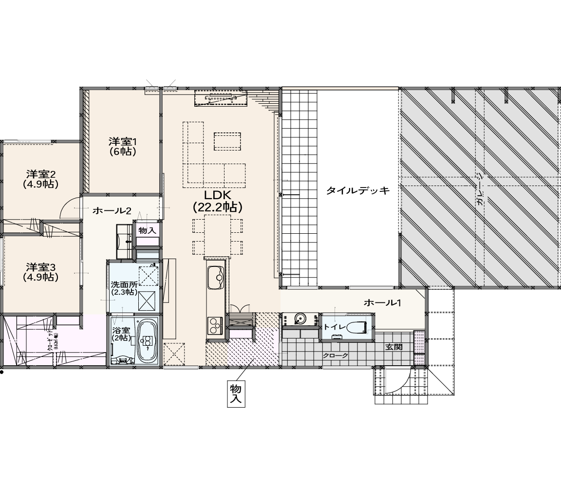
ノーブルガーデン笠原3期 No.15
販売価格
5,400万円(税込)
この物件の
ポイント
- 大切な人と集いたくなる平屋の家 -
●開放的な空間の中にある密な集い
家族が集うLDKは22帖超。その大空間の中で、ソファを造作カウンターとつなげてテレビを囲むように配置することで、大切な人と過ごしたくなるコミュニケーションの場が生まれます。
●ハイパフォーマンス・ランドリー
脱衣、洗濯、乾燥、片付けまでを最小限の移動で完結。脱衣室とウォークインクローゼットの間にあるランドリールーム。
●あたたかなモノトーン空間
ブラックとグレーで構成されたキッチンは、アイランドタイプのため、シャープなデザインが一層際立っています。大開口からの陽光と温もりのある床材との相性が心地よい空間です。
●包み込まれるような灯りをデザイン
LDK全体を包み込むようにL字型の間接照明を設えました。南面の開口上部には光のロングラインが描かれます。ペンダントライトとダウンライトと合わさり、穏やかな集いの時間をつくります。

間取り
3LDK
土地面積
250.05m²(75.64坪)
建物面積
96.12m²(29.07坪)
構造
J-WOOD工法
現況
完成済
引渡し可能日
相談
建築確認番号
R05A確済M0054号


周辺環境
-
マルトSC笠原店
約900m~約1,100m(徒歩12分~14分)
-
スーパービバホーム水戸県庁前店
約1,000m~約1,200m(徒歩13分~15分)
-
笠原小学校
約500m~約700m(徒歩7分~9分)
-
笠原中学校
約650m~約850m(徒歩9分~11分)

地図

物件概要
所在地
交通
JR常磐線「水戸駅」まで約4,900m~約5,000m(車で13分)※実測による
販売価格
5,400万円~6,250万円
土地面積
250.05m²(75.64坪)~261.25m²(79.03坪)
建物面積
96.12m²(29.07坪)~129.38m²(39.13坪)
学区
水戸市立笠原小学校/水戸市立笠原中学校
総区画数
36区画
販売棟数
4棟
地目
宅地
用途地域
指定なし
都市計画
市街化調整区域(エリア指定区域)
道路
開発道路 約6m
建ぺい率
60%
容積率
200%
設備
公営水道・都市ガス・東京電力・公共下水
取引形態
売主
権利(土地権利)
所有権
施工・設計会社名
株式会社ノーブルホーム
その他特記事項
※ごみ集積所持分あり
※図面と現況が異なる場合には、現況優先となります。
最終更新日
2025年8月27日
物件のご来場・お問い合わせ
ノーブルガーデン笠原3期 No.15
お電話でのお問い合わせご相談はこちら
ノーブルホーム水戸笠原展示場 North Gallery
〒 310-0852 水戸市笠原町560-1ハウジングギャラリー水戸内
AM9:30~PM5:30
水曜日 ※祝日は除く