ノーブルガーデン駅南町2丁目
~国道50号と駅へのアクセス良好♪
所在地
交通
JR小山駅まで約1,000m〜1,080m(徒歩13分~14分)
小学校 /
中学校
旭小学校/小山城南中学校
販売価格
3,980万円~4,480万円
販売棟数
1棟
総区画数
11区画

コンセプト
光り輝く街 煌めく日常
小山市の中心に美しい輝きを放つ灯り。小山市駅南町に私たちの人生を豊かにしてくれる11の暮らしが誕生しました。
資産価値の高い閑静な住宅街の真ん中に輝くスタイリッシュな灯の共演。
光を感じながら過ごす何気ないひととき。日常にある美しい輝きが、私たちの暮らしを彩り充実した時間になる。
ここは私たちの暮らしを豊かに演出してくれる人生のステージです。

おすすめポイント
-
都心へも通勤圏内
充複数の在来線が集積するビッグターミナル「小山」駅。
湘南新宿ライン・東京上野ラインの開通により、都心アクセスが飛躍的に向上。
通勤通学の利便はもちろん、休日のお出かけも軽快です。
新幹線で「東京」駅へ41分、「上野」駅へ35分。 在来線でも「宇都宮」駅へ25分、「大宮」駅へ52分。 -
小山市の支援制度充実
<住宅支援>
市内転入+住宅新築・購入で最大50万円補助、金利引下げ。
<通勤支援>
月額1万円×最大36ヶ月補助。東京圏への新幹線通勤をサポート。
<こども医療費助成制度>
お子様(18歳まで)の医療費(保険の範囲内)は無料です。 -
平日は都会で仕事、週末はのんびと過ごす。メリハリある暮らし
利便性も良く、自然も楽しめる小山市。
子育てをするのも魅力的な町、若い世代にも人気が高まっています。
国道50号線国道4号線も近く、宇都宮市内でのショッピングやランチなども楽しむことができます。
-
区画図・
間取り -
周辺環境
-
地図
-
物件概要

区画図・間取り
ノーブルガーデン駅南町2丁目 No.6
販売価格
3,980万円(税込)
お支払い例
建物
土地
月々支払い77,248円
※ローン概要:取扱金融機関/常陽銀行、返済方法/変動金利(3年固定)、/返済期間40年、借入金利/0.625%、融資期間40年、金利は変わることがあります。「変動金利(3年固定)」は、契約から3年間は金利が固定され、その後は金利が見直されるタイプです。固定期間終了後は市場金利の変動により、返済額が変わる場合がありますのでご了承ください。ボーナス(¥98,073 年2回加算)を含む、融資手数料等、別途諸費用が必要になります。詳しくは店舗までお問合せ下さい。上記融資条件及び金利は令和7年7月時点のものです。
この物件の
ポイント
【BBQやガーデニングなども楽しめるお庭付きで家族との思い出がたくさん増えること間違いなし!】
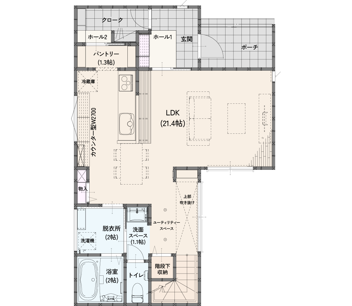
1.21帖あるLDKは広々としていて家族みんながゆったり快適に過ごせます。
2.玄関から、直接リビングに向かったり、洗面所で手を洗ってからキッチンに移動したり、生活に合わせた回遊動線。
3.クロークに荷物を置いてからリビングへ、買い物帰りは直接パントリー、来客の際はリビングへと使い分けができます!
4.洗面所と浴室をキッチンの後ろに隣接することで効率がUP。毎日の行き来が楽になります。

間取り
3LDK
土地面積
201.74m²(61.03坪)
建物面積
106.82m²(32.3坪)
構造
木造2階建て(在来工法)
現況
完成済
引渡し可能日
相談
建築確認番号
第SJK-KX246011890号

ノーブルガーデン駅南町2丁目 No.10
販売価格 新価格
4,480万円(税込)
お支払い例
建物
土地
月々支払い103,625円
※ローン概要:取扱金融機関/常陽銀行、返済方法/変動金利(3年固定)、/返済期間40年、借入金利/0.625%、融資期間40年、金利は変わることがあります。「変動金利(3年固定)」は、契約から3年間は金利が固定され、その後は金利が見直されるタイプです。固定期間終了後は市場金利の変動により、返済額が変わる場合がありますのでご了承ください。融資手数料等、別途諸費用が必要になります。詳しくは店舗までお問合せ下さい。上記融資条件及び金利は令和7年7月時点のものです。

間取り
3LDK
土地面積
189.9m²(57.44坪)
建物面積
85.6m²(25.84坪)
構造
木造 地上2階建て
現況
完成済
建物
完成時期
2024年7月
引渡し可能日
相談
建築確認番号
第R05確認建築小山00079号(令和6年2月26日)


周辺環境
-
旭小学校
約800m~約880m(徒歩10分~11分)
-
小山城南中学校
約1,300m~約1,400m(徒歩17分~18分)
-
ロイヤルホームセンター 小山店
約800m~約900m(徒歩10分~12分)
-
ウエルシア 小山駅南店
約280m~約380m(徒歩4分~5分)
-
マルシェ 小山店
約850m~約930m(徒歩11分~12分)
-
高辻第1公園
約90m~約190m(徒歩2分~3分)
-
小山市立駅南児童センター
約120m~約220m(徒歩2分~3分)

地図

物件概要
所在地
交通
JR小山駅まで約1,000m〜1,080m(徒歩13分~14分)
販売価格
3,980万円~4,480万円
土地面積
189.9m²(57.44坪)~201.74m²(61.03坪)
建物面積
85.6m²(25.84坪)~106.82m²(32.3坪)
学区
旭小学校/小山城南中学校
総区画数
11区画
販売棟数
1棟
地目
宅地
用途地域
第1種住居地域
都市計画
市街化区域
道路
公道約8m、開発道路約6m
建ぺい率
60%
容積率
200%
設備
公営水道・東京電力・個別プロパン・公共下水
取引形態
売主
権利(土地権利)
所有権
施工・設計会社名
株式会社ノーブルホーム
その他特記事項
◎水道加入金
開発許可番号/ 第2101‐005号(令和3年4月20日)
※図面と現況が異なる場合には、現況優先となります。
最終更新日
2025年7月25日
物件のご来場・お問い合わせ
ノーブルガーデン駅南町2丁目 No.10
お電話でのお問い合わせご相談はこちら