ノーブルガーデン稲田2期 No.5

  • 省エネ住宅
  • 太陽光パネル
  • 省令準耐火構造
  • 住宅設備10年保証

回遊動線と大容量収納で、毎日がスムーズに整うお家。

ノーブルガーデン稲田2期 No.5
ノーブルガーデン稲田2期 No.5
ノーブルガーデン稲田2期 No.5
ノーブルガーデン稲田2期 No.5
ノーブルガーデン稲田2期 No.5
ノーブルガーデン稲田2期 No.5

※パースはイメージです。仕様は物件により異なります。

販売価格

3,290万円(税込)

月々支払い:61,166

ローン概要はこちら

間取 3LDK
土地面積 236.26m²(71.46坪)
建物面積 105.16m²(31.8坪)

ローン概要

※ローン概要:取扱金融機関/常陽銀行、返済方法/変動金利、/返済期間40年、借入金利/0.825%、融資期間40年、金利は実際に融資が実行される月の金利となります。金利は変わることがあります。ボーナス(¥102,908 年2回加算)を含む、融資手数料等、別途諸費用が必要になります。詳しくは店舗までお問合せ下さい。上記融資条件及び金利は令和8年4月時点のものです。

この物件の
ポイント

1.「太陽光発電システム」6.23kW搭載

2.テレビ背面を活用した3帖の収納スペースを確保。リビングから見えにくい配置で、空間をすっきりと保ちます。

3.リビングの窓はお庭への視線を意識して配置。自然と景色が目に入り、開放感あふれる空間です。

4.玄関からリビングに向かう動線と、パントリーへの直通ルートも完備。買い物帰りにストック品をそのまま収納でき、家事がぐっとラクになります。

5.カップボードは、大人2人が並んでも余裕で使える幅2.7m。隣接するカウンターは、料理をしながらお子様の宿題を見守ったり、ちょっとした収納スペースとしても大活躍します。

6.3帖の洗面所には、室内物干し・カウンター・高さ調節可能な棚を完備。干す・畳む・しまうがその場でできる、家事効率抜群のスペースです。

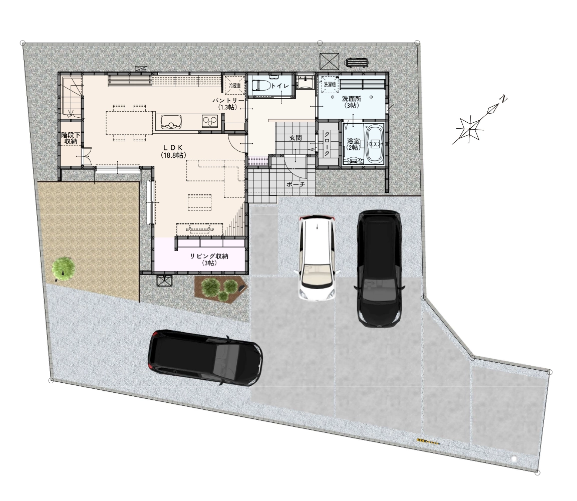
間取 / 区画図

  1. 1F+外構図

    1F+外構図

  2. 2F

    2F

  3. 区画図

    区画図

右スクロールでご覧いただけます。

よくあるご質問

小さい子がいるのですが、見学しても大丈夫でしょうか?

ぜひお子様連れでお越しください。お困りごとがありましたら、スタッフまでお気軽にお声がけください!

家づくりのことは何も決まっていなくて・・・。ただ見たいだけなんですが、それでも見学してもいいですか?

もちろん何も決まっていなくても大丈夫です!ぜひお気軽にお越しください!

しつこく営業されたら困るのですが・・・

無理な営業は致しませんので、ご安心ください!

近くに駐車場はありますか?

現地には駐車スペースもご用意していますので、お車でも気軽にご来場ください。

アクセス

教養施設

商業施設

医療

交通

基本物件概要 (分譲地)

分譲地名

ノーブルガーデン稲田2期

所在地

茨城県ひたちなか市稲田 (MAP)

交通

JR常磐線「佐和駅」まで 約1,000m~約1,100m (徒歩13分~14分)

学区

佐野小学校/佐野中学校

総区画数

5区画

地目

宅地・畑・山林

用途地域

第一種低層住居専用地域

都市計画

市街化区域

道路

位置指定道路 約6m

取引形態

売主

設備

公営水道・東京電力・個別プロパン・合併浄化槽

権利(土地権利)

所有権

施工・設計会社名

株式会社ノーブルホーム

その他特記事項

◎水道加入金
※農地転用を要します。
※位置指定道路持分有り
※セットバック部分持分有り
※ごみ集積所持分有り
※図面と現況が異なる場合には、現況優先となります。
※2024年7月10日土地価格変更(No.5)

最終更新日

2026年4月15日

建売分譲住宅 (ノーブルガーデン稲田2期 No.5)

販売価格

3,290万円(税込)

建ぺい率

40%

容積率

80%

土地面積

236.26m²(71.46坪)

建物面積

105.16m²(31.8坪)

間取

3LDK

構造

木造2階建て(在来工法)

建築確認番号

第2025CA‐1437H号

建物完成時期

2026年7月

現況

引渡し可能日

相談

OTHER ESTATE

周辺の物件