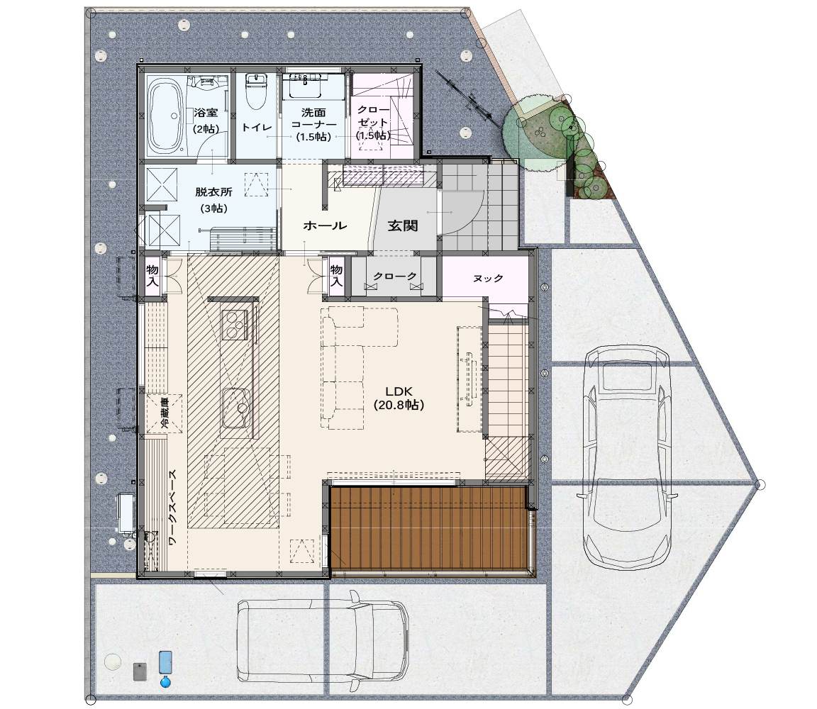
茨城県日立市鮎川町6丁目(MAP)
JR常磐線「常陸多賀駅」まで約2,600m(徒歩33分)
成沢小学校/多賀中学校
販売価格
4190万円
間取
3LDK
土地面積
279.16m²(84.44坪)
建物面積
89.02m²(26.92坪)
1F+外構
茨城県日立市金沢町4丁目(MAP)
JR常磐線「常陸多賀駅」まで約2,200m~2,300m(徒歩28分~29分)
金沢小学校/台原中学校
2990万円
201.53m²(60.96坪)
102.28m²(30.93坪)
1F+外構図
2F
茨城県ひたちなか市大字中根字六ツ野(MAP)
JR常磐線「勝田駅」まで 約2,700m~約2,750m (車で7分)
外野小学校/大島中学校
3360万円
235m²(71.08坪)
99.36m²(30.05坪)
茨城県常陸大宮市下町(MAP)
JR水郡線「常陸大宮駅」まで約350m(徒歩5分)
大宮小学校/大宮中学校
2980万円
215.88m²(65.3坪)
101.85m²(30.8坪)
1F
215.25m²(65.11坪)
102.67m²(31.05坪)
1F+外構図
茨城県常陸大宮市抽ヶ台町(MAP)
水郡線「常陸大宮」駅まで約870m(徒歩11分)
大宮西小学校/大宮中学校
2950万円
220.58m²(66.72坪)
100.19m²(30.3坪)
茨城県北茨城市磯原町磯原四丁目(MAP)
JR常磐線「磯原駅」まで約550m(徒歩7分)
精華小学校/磯原中学校
3980万円
224.11m²(67.79坪)
130m²(39.31坪)
茨城県那珂市竹ノ内(MAP)
JR水郡線「上菅谷駅」まで約1,300m~約1,400m(徒歩17分~18分)、JR水郡線「中菅谷駅」まで約1,500m~約1,600m(徒歩19分~20分)
菅谷東小学校/那珂市立第四中学校
4590万円
252.46m²(76.36坪)
96.88m²(29.3坪)
茨城県ひたちなか市東大島三丁目(MAP)
JR常磐線「勝田駅」まで 約1,300m~約1,340m(徒歩17分)
東石川小学校/大島中学校
3380万円
186.9m²(56.53坪)
103.51m²(31.3坪)
茨城県日立市末広町三丁目(MAP)
JR常磐線「常陸多賀駅」まで約1,300m~約1,320m(徒歩17分)
大久保小学校/大久保中学校
164.32m²(49.7坪)
105.58m²(31.93坪)
JR常磐線「勝田駅」まで約2,800~約2,850(車で7分~8分)※実測による
3290万円
3SLDK
182m²(55.05坪)
111.16m²(33.62坪)
茨城県東海村白方中央1丁目(MAP)
JR常磐線「東海駅」 約1,400m~約1,600m (徒歩18分~20分)
白方小学校/東海中学校
3390万円
204.87m²(61.97坪)
108.48m²(32.81坪)
茨城県ひたちなか市大字東石川(MAP)
JR常磐線「勝田駅」まで 約950m~約1,000m(徒歩12分~13分)
4780万円
188.61m²(57.05坪)
107.64m²(32.56坪)
茨城県笠間市鴻巣(MAP)
JR常磐線「友部駅」 約1.100m~約1.200m (徒歩14分~15分)
友部小学校/友部中学校
3080万円
215.45m²(65.17坪)
215.6m²(65.21坪)
88.6m²(26.8坪)
茨城県水戸市酒門町(MAP)
JR常磐線 水戸駅 約5,000m
酒門小学校/水戸市立第四中学校
2930万円
227.68m²(68.87坪)
86.74m²(26.23坪)
茨城県鹿嶋市平井東1丁目(MAP)
「鹿島神宮」駅まで6100m~6200m 車で16分~17分
平井小学校/平井中学校
2780万円
268m²(81.06坪)
101.33m²(30.65坪)
茨城県水戸市笠原町字下組(MAP)
JR常磐線「水戸駅」まで約4,900m~約5,000m(車で13分)※実測による
水戸市立笠原小学校/水戸市立笠原中学校
5300万円
261.25m²(79.02坪)
122.55m²(37.06坪)
茨城県水戸市新原1丁目(MAP)
JR常磐線「赤塚駅」2700m~2800m
堀原小学校/水戸第五中学校
200.51m²(60.65坪)
103.92m²(31.43坪)
200.15m²(60.54坪)
101.02m²(30.55坪)
茨城県水戸市河和田町字一丁田(MAP)
JR常磐線「赤塚駅」まで約1,850m~約1,920m(徒歩24分)
河和田小学校/赤塚中学校
4LDK
255.78m²(77.37坪)
107.23m²(32.43坪)
茨城県水戸市東野町(MAP)
JR常磐線「水戸駅」まで約5,500m~約5,700m (車で14分~15分)
吉沢小学校/水戸第四中学校
3480万円
250.37m²(75.73坪)
85.29m²(25.8坪)
3230万円
255.23m²(77.2坪)
91.5m²(27.68坪)
茨城県水戸市千波町(MAP)
常磐線「水戸駅」まで約3,300m(徒歩42分)
緑岡小学校/緑岡中学校
2490万円
187.04m²(56.57坪)
91.91m²(27.79坪)
茨城県鹿嶋市宮津台(MAP)
JR鹿島線「鹿島神宮駅」 約2,600m~2,700m
波野小学校/鹿島中学校
184.9m²(55.93坪)
JR常磐線「水戸駅」まで 約2,700m~約2,800m (徒歩34分~35分)
浜田小学校/水戸市立第三中学校
3280万円
250.7m²(75.83坪)
88.19m²(26.67坪)
茨城県阿見町荒川本郷(MAP)
JR常磐線「荒川沖駅」 約2,300m~約2,400m(徒歩29分~30分)
阿見町立本郷小学校/阿見町立朝日中学校
4500万円
193.67m²(58.58坪)
113.44m²(34.31坪)
茨城県土浦市並木5丁目(MAP)
常磐線「土浦」駅まで約5,300m~約5,500m(車で14分)
都和小学校/都和中学校
173.8m²(52.57坪)
99.16m²(29.98坪)
198.91m²(60.17坪)
106.4m²(32.17坪)
茨城県つくば市島名(MAP)
つくばエクスプレス「万博記念公園駅」徒歩24分、「みどりの駅」徒歩30分
谷田部小学校/谷田部中学校
5280万円
183.65m²(55.55坪)
102.47m²(30.99坪)
4240万円
181.87m²(55.01坪)
108.47m²(32.8坪)
181.66m²(54.95坪)
114.27m²(34.56坪)
茨城県阿見町中央7丁目(MAP)
JR「荒川沖駅」まで約5,800m~約5,820m (車で約15分)
阿見小学校/阿見中学校
2880万円
177.84m²(53.79坪)
94.6m²(28.61坪)
179.46m²(54.28坪)
96.87m²(29.29坪)
茨城県つくば市みどりの南(MAP)
つくばエクスプレス「みどりの駅」 約2,000m~約2,100m(徒歩25分~27分)
みどりの南小学校/みどりの南中学校
4440万円
181.59m²(54.93坪)
115.51m²(34.94坪)
茨城県守谷市松前台3丁目(MAP)
関東鉄道常総線「小絹駅」 約1,400m~約1,450m(徒歩18分~19分)
松前台小学校/御所ケ丘中学校
4380万円
183.03m²(55.36坪)
105.99m²(32.06坪)
茨城県龍ケ崎市松ケ丘4丁目(MAP)
関東鉄道竜ヶ崎線「竜ヶ崎駅」 約5,020m~約5,060m(車で13分)
八原小学校/城ノ内中学校
3340万円
180.09m²(54.47坪)
117.58m²(35.56坪)
176.22m²(53.3坪)
101.01m²(30.55坪)
茨城県つくば市島名香取台(MAP)
つくばエクスプレス「万博記念公園」駅まで約1,400m(徒歩18分)
香取台小学校/高山中学校
4370万円
212.44m²(64.26坪)
88.18m²(26.67坪)
茨城県筑西市横島(MAP)
水戸線「下館駅」まで約2,000m~約2,000m(徒歩25分~25分)
竹島小学校/下館中学校
2540万円
207.27m²(62.69坪)
106.82m²(32.3坪)
千葉県柏市手賀の杜5丁目(MAP)
JR柏駅 約5,600m~約5,630m(車で14分~15分)
風早北部小学校/大津ヶ丘中学校
4980万円
150.01m²(45.37坪)
108.27m²(32.75坪)
千葉県流山市後平井(MAP)
TX「流山セントラルパーク駅」まで約550m~約580m(徒歩7~8分)
八木南小学校/八木中学校
7980万円
149m²(45.07坪)
112.41m²(34坪)
千葉県我孫子市栄(MAP)
JR常磐線・成田線「我孫子駅」まで約1,510m~約1,680m(徒歩19分~21分)
我孫子第一小学校/白山中学校
141.57m²(42.82坪)
97.29m²(29.42坪)
142.06m²(42.97坪)
95.22m²(28.79坪)
栃木県栃木市今泉町一丁目字情進川戸768-1外(MAP)
東武日光線「新栃木駅」から徒歩約12分~14分(約900m~1,100m)
大宮北小学校/東陽中学校
2580万円
221.43m²(66.98坪)
101.01m²(30.49坪)
配置図
3250万円
226.04m²(68.37坪)
101.64m²(30.68坪)
1F
2F
栃木県下野市柴字烏ケ森1428番9外(MAP)
JR「小金井駅」まで約1,400m~1,450m(徒歩18分~19分)
国分寺東小学校/国分寺中学校
3420万円
252.97m²(76.52坪)
103.09m²(31.18坪)
栃木県下野市小金井三丁目(MAP)
JR宇都宮線「小金井駅」まで約1300m~1350m(徒歩17分)
国分寺小学校/国分寺中学校
3490万円
240m²(72.59坪)
104.12m²(31.49坪)
104.13m²(31.49坪)
栃木県栃木市川原田町(MAP)
東武日光線「合戦場駅」まで1,900m
吹上小学校/吹上中学校
3650万円
207.14m²(62.65坪)
117.58m²(35.5坪)
栃木県小山市駅南町2丁目(MAP)
JR小山駅まで約1,000m〜1,080m(徒歩13分~14分)
旭小学校/小山城南中学校
201.74m²(61.02坪)
栃木県栃木市片柳町1丁目886外3筆(MAP)
JR・東武「栃木駅」から徒歩12分(約900m)
栃木第五小学校/栃木西中学校
2830万円
254.85m²(77.09坪)
98.39m²(29.7坪)
1階
2階
2530万円
213.61m²(64.61坪)
90.73m²(27.39坪)
栃木県佐野市植上町字北馬場町(MAP)
東武佐野線「佐野市駅」まで約850~860m
植野小学校/南中学校
3300万円
212.85m²(64.38坪)
100.03m²(30.2坪)
栃木県佐野市堀米町(MAP)
東武佐野線「堀米駅」から徒歩6分(約450m)
城北小学校/北中学校
3800万円
194.1m²(58.71坪)
103.51m²(31.25坪)
栃木県鹿沼市貝島町5010番5(MAP)
東武日光線「新鹿沼駅」から徒歩15~16分(約1200~1300m)
鹿沼市立東小学校/鹿沼市立東中学校
206.05m²(62.33坪)
105.99m²(32坪)
栃木県宇都宮市江曽島駅南(MAP)
東武宇都宮線「江曽島駅」から徒歩9分(約670m~700m)
緑が丘小学校 /姿川中学校
3790万円
208.47m²(63.06坪)
93.69m²(28.28坪)
栃木県宇都宮市細谷町字下細谷295番3外3筆(MAP)
東武宇都宮線「東武宇都宮駅」約4,000m
宝木小学校/宝木中学校
4180万円
233.36m²(70.59坪)
110.96m²(35.55坪)
外構図
206.47m²(62.45坪)
111.57m²(33.74坪)
栃木県宇都宮市宮原3丁目(MAP)
東武宇都宮線「南宇都宮駅」約800m(徒歩10分)
宮の原小学校/一条中学校
3690万円
211.56m²(63.99坪)
98.12m²(29.62坪)
建売一斉相談会はご予約後、最寄りの担当店舗よりご連絡いたします。