- 大型分譲地
- TX沿線
ブリージアつくば陣場
日々の暮らし、教育、環境全てが私にあっていると思える街、つくば市で過ごしませんか。
所在地
交通
つくばエクスプレス「万博記念公園駅」徒歩24分、「みどりの駅」徒歩30分
小学校 /
中学校
谷田部小学校/谷田部中学校
販売価格
4,240万円~5,280万円
販売棟数
3棟
総区画数
72区画
コンセプト
ブリージアつくば陣場の暮らし
つくば市は科学の街というイメージとは少し変わって、自然豊かで道路も安全、市民度の高さ、
ショッピングが便利で賑やかさもあり子育て世帯が多いなど、落ち着いた住環境と買い物や道路の利便性の高さが魅力です。
日々の暮らし、教育、環境全てが私にあっていると思える街、つくば市で過ごしませんか。
-
区画図・
間取り -
周辺環境
-
地図
-
物件概要
区画図・間取り
ブリージアつくば陣場 No.4
販売価格
5,280万円(税込)
この物件の
ポイント
【ブリージアつくば陣場No.4】
プランコンセプト
家族の快適な生活を第一に考え、開放感とデザイン性、そして機能性を兼ね備えた住空間を創り出すことを目指しています。
1. 圧倒的な開放感を誇る4.5mの大空間と吹き抜けのLDK
4.5mの広々とした大空間に吹き抜けを組み合わせたLDKは、その開放感で訪れる人々を圧倒します。
天井の高さと大きな窓から差し込む自然光が、リビング全体を明るくし、家族がリラックスして過ごせる心地よい空間を提供します。
2. 特徴的な連窓のファサード
外観には特徴的な連窓を取り入れ、モダンで洗練されたファサードを実現しました。
連窓は建物全体にリズム感を与え、吹き抜け上部からは十分な自然光を取り込むことができます。
デザイン性と機能性を兼ね備えた外観は、周囲の景観にも調和しつつ、独自の存在感を放ちます。
3. 便利な家事動線と広々としたパントリー
共働き家庭に最適な効率的な家事動線を設計しました。
キッチンから洗濯スペース、収納スペースまで無駄のない動線を確保し、家事がスムーズに行えるよう工夫しました。
さらに、広々としたパントリーを設けることで、食品や日用品の収納に困ることなく、整理整頓されたキッチンを保つことができます。
4. 多目的に活用できる2階ホールのカウンター
2階のホールには、多目的に利用できるカウンターを設置しました。
このカウンターは、読書や勉強、さらには物干しスペースとしても活用できるため、家族それぞれのニーズに応じた使い方が可能です。
ホール全体を有効活用し、機能的で柔軟な空間を提供します。
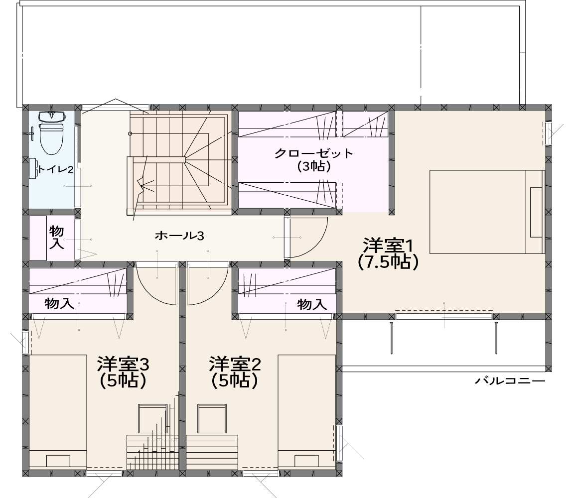
間取り
3LDK
土地面積
183.65m²(55.55坪)
建物面積
102.47m²(30.99坪)
構造
木造2階建て(DJ構法)
現況
完成済
建物
完成時期
2025年8月
引渡し可能日
相談
ブリージアつくば陣場 No.20
販売価格
4,240万円(税込)
この物件の
ポイント
<南向きで暖かいリビング 家事ラクな水廻り動線 ゆとりある暮らしを実現>
●キッチンからリビングダイニングを見渡せる間取り
子どもが小さいうちは料理をしている時に何をしているか確認することができて安心。
●広々LDK
20帖あるLDKは広々としていて家族みんながゆったり快適に過ごせます。
●ファミリークローゼット
子育て世帯にマストな収納。ウォークスルーにすることで、毎日に行き来が楽になります。
●各部屋収納
収納を設計する上で、重要なのは『適材適所』。玄関クロークやクローゼットなど、生活動線上に配置。
間取り
3LDK
土地面積
181.87m²(55.01坪)
建物面積
108.47m²(32.8坪)
構造
木造二階建て(集成ピン工法)
現況
完成済
建物
完成時期
2025年8月
引渡し可能日
相談
ブリージアつくば陣場 No.21
販売価格
4,240万円(税込)
この物件の
ポイント
<南向きで暖かいリビング 家事ラクな水廻り動線 ゆとりある暮らしを実現>
●一直線の水回り動線
パントリー、キッチン、洗面所を一直線で効率がUP。毎日の行き来が楽になります。
●洗面所・脱衣所
洗面所と脱衣所を独立させて、プライバシーを確保。また来客時も気を遣わず洗面所を使用していただくことができます。
●対面式キッチン
キッチンにいながらリビングダイニングにいる家族と会話ができる配置。家族にコミュニケーションが深まります。
●全面南向き
子供部屋・主寝室がすべて南向きで、日中は明るく過ごすことができます。
間取り
4LDK
土地面積
181.66m²(54.95坪)
建物面積
114.27m²(34.56坪)
構造
木造二階建て(集成ピン工法)
現況
完成済
建物
完成時期
2025年8月
引渡し可能日
相談
周辺環境
-
谷田部小学校
約1,740m〜約1,770m(徒歩約22分〜23分)
-
谷田部中学校
約1,840m〜約1,870m(徒歩約23分〜24分)
-
南十字保育園
約840m〜約810m(徒歩約10分〜11分)
-
タイヨービッグハウス
約2,100m〜約2,150m(徒歩約27分)
-
クスリのアオキ
約1,820m〜約1,870m(徒歩約23分〜24分)
-
イーアスつくば
約7,300m〜約7,350m(車約14分)
-
いろは公園
約230m〜約240m(徒歩約3分)
-
木の葉公園
約1,000m〜約1,050m(徒歩約12分〜13分)
-
万博記念公園
約2,700m〜約2,750m(徒歩約34分〜35分)
地図
物件概要
所在地
交通
つくばエクスプレス「万博記念公園駅」徒歩24分、「みどりの駅」徒歩30分
販売価格
4,240万円~5,280万円
土地面積
181.66m²(54.95坪)~183.65m²(55.55坪)
建物面積
102.47m²(30.99坪)~114.27m²(34.56坪)
学区
谷田部小学校/谷田部中学校
総区画数
72区画
販売棟数
3棟
地目
宅地
用途地域
第1種低層住居専用地域
都市計画
市街化区域
道路
開発道路 約6m
建ぺい率
40%
容積率
80%
設備
公営水道・東京電力・個別プロパン・公共下水
取引形態
売主
権利(土地権利)
所有権
施工・設計会社名
株式会社ノーブルホーム
その他特記事項
◎水道加入金
※管理組合法人にご加入いただきます
※景観協定あり
※地区計画あり
※図面と現況が異なる場合には、現況優先となります
最終更新日
2025年12月24日
物件のご来場・お問い合わせ
ブリージアつくば陣場 No.21
お電話でのお問い合わせご相談はこちら