ノーブルガーデン宮津台5期
所在地
交通
JR鹿島線「鹿島神宮駅」 約2,600m~2,700m
小学校 /
中学校
波野小学校/鹿島中学校
販売価格
2,930万円
販売棟数
1棟
総区画数
2区画
-
区画図・
間取り -
周辺環境
-
地図
-
物件概要
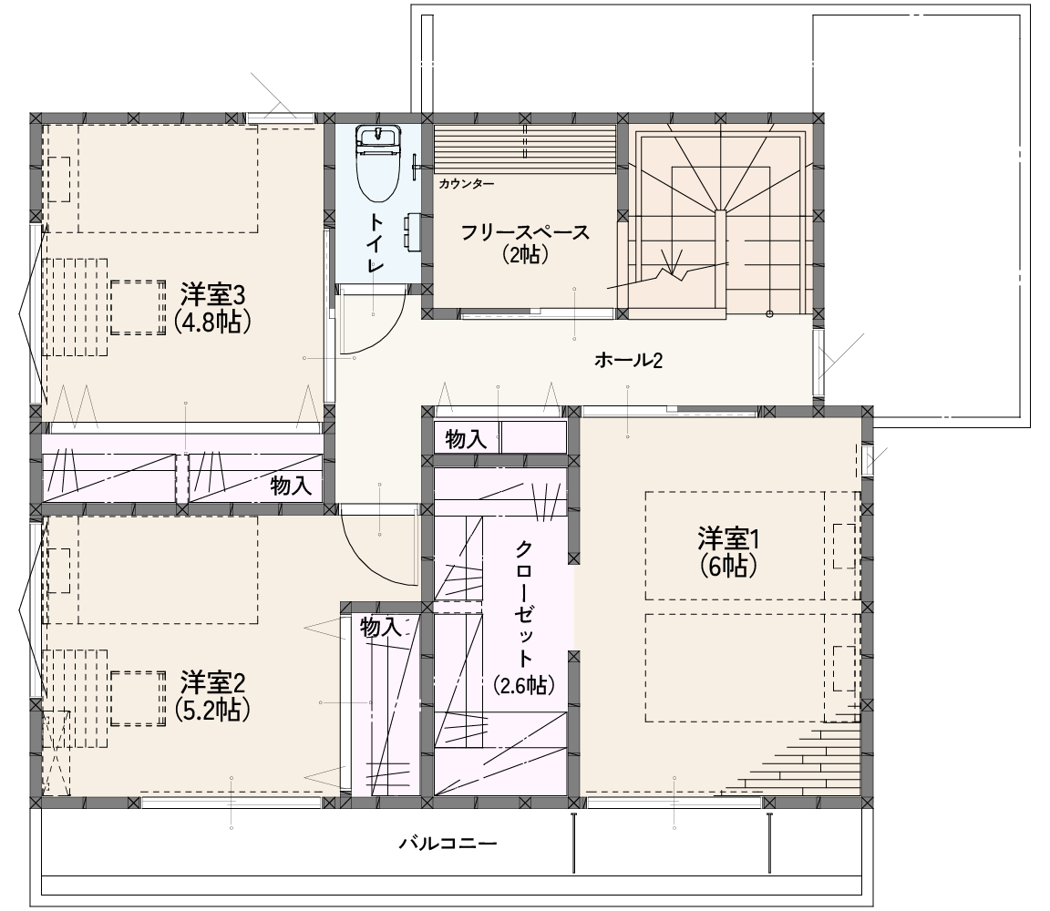
区画図・間取り
ノーブルガーデン宮津台5期 No.2
販売価格
2,930万円(税込)
この物件の
ポイント
【広々しているのにコンパクトに抑えた趣味も楽しめる暮らし】
1.3帖のリビング収納は収納力が抜群です。日用品のストックや季節家電など幅広いアイテムを収納することができます。
2.キッチンから部屋を見渡せるので、子どもが小さいうちは料理をしている時に何をしているか確認することができて安心。
3.洗面所と浴室をキッチンの後ろに隣接することで家事効率がUP。毎日の行き来が楽になります。
4.フリースペースは趣味を楽しむスペース、家事スペース、リモートワークなどマルチに活用できます。
間取り
3LDK
土地面積
184.9m²(55.93坪)
建物面積
102.67m²(31.05坪)
構造
木造2階建て(在来工法)
建物
完成時期
2025年9月
引渡し可能日
相談
建築確認番号
第R06A確済M1635号
周辺環境
-
波野小学校
約1600m~1610m(徒歩22分~22分)
-
鹿島中学校
約950m~960m(徒歩13分~13分)
-
フーズマーケットさえき鹿嶋店
約800m~810m(徒歩11分~11分)
-
クスリのアオキ神向寺店
約1000m~1010m(徒歩15分~15分)
-
宮津台ふれあい公園
約400m~410m(徒歩6分~6分)
-
ミニストップ鹿嶋宮津台店
約160m~1610m(徒歩2分~2分)
-
さくらクリニック
約350m~360m(徒歩4分~4分)
-
カスミ鹿嶋スタジアム店
約1000m~1010m(徒歩15分~15分)
地図
物件概要
所在地
交通
JR鹿島線「鹿島神宮駅」 約2,600m~2,700m
販売価格
2,930万円
土地面積
184.9m²(55.93坪)
建物面積
102.67m²(31.05坪)
学区
波野小学校/鹿島中学校
総区画数
2区画
販売棟数
1棟
地目
鹿島中学校
用途地域
第1種低層住居専用地域
都市計画
市街化区域
道路
公道 約8m
建ぺい率
40%
容積率
80%
設備
公営水道・個別プロパン・東京電力・公共下水
取引形態
売主
権利(土地権利)
所有権
施工・設計会社名
株式会社ノーブルホーム
その他特記事項
水道加入金あり
受益者負担金あり 1㎡あたり250円
最終更新日
2025年11月24日
物件のご来場・お問い合わせ
ノーブルガーデン宮津台5期 No.2
お電話でのお問い合わせご相談はこちら