マルワタウン江曽島駅南
【限定3区画】全区画ゆとりのある敷地。南向きの整形地です。江曽島駅まで徒歩約9分なので、通勤や通学にも便利な立地です。
所在地
交通
東武宇都宮線「江曽島駅」から徒歩9分(約670m~700m)
小学校 /
中学校
緑が丘小学校 /姿川中学校
販売価格
3,780万円~3,790万円
販売棟数
総区画数
3区画
-
区画図・
間取り -
周辺環境
-
地図
-
物件概要

区画図・間取り
マルワタウン江曽島駅南No.1
販売価格
3,780万円(税込)
お支払い例
建物
土地
月々支払い104,446円
※ローン概要:返済期間35年、金利1%、自己資金80万円、借入額3,700万円、ボーナス支払いなし
詳細はお問合せください。
この物件の
ポイント
\ 建築家が作る分譲住宅 -GRAND ARCHI- 宇都宮市江曽島駅南1号棟 /
≪見どころポイント≫
■18帖越えの広々空間。ワンフロアで家族団らんタイムを過ごせます。
■自然光が差し込む明るい設計、快適さと機能性を両立
■忙しい朝も快適に過ごせる広い玄関ホール
■主寝室にはW.I.C、その他各居室にクローゼット完備
■リビングエアコン・全居室LED照明・網戸・食洗器・食器棚が標準装備!

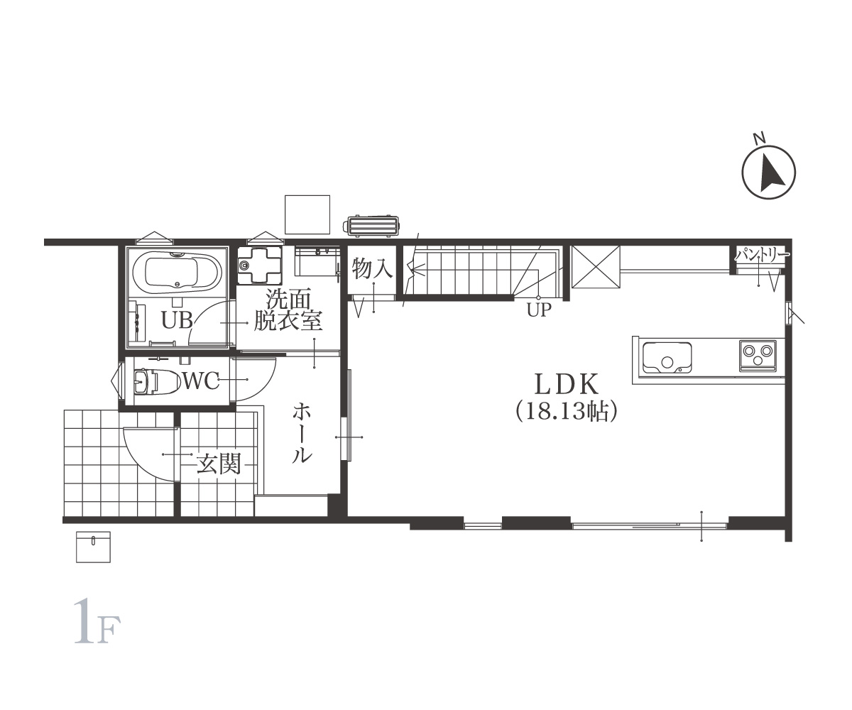
間取り
3LDK
土地面積
189.77m²(57.4坪)
建物面積
95.26m²(28.76坪)
現況
未着工
建物
完成時期
未定
引渡し可能日
相談
建築確認番号
第24UDI1S建04073号(令和6年12月16日)

マルワタウン江曽島駅南No.3
販売価格 新価格
3,790万円(税込)
お支払い例
建物
土地
月々支払い85,890円
※ローン概要:返済期間40年、金利0.55%、自己資金90万円、借入額3,700万円、ボーナス支払いなし
詳細はお問合せください。
この物件の
ポイント
\ 建築家が作る分譲住宅 -GRAND ARCHI- 宇都宮市江曽島駅南3号棟 /
≪見どころポイント≫
■18帖越えの広々空間。ワンフロアで家族団らんタイムを過ごせます。
■お料理の配膳が楽になる横並びのキッチンダイニング
■リビングやキッチン、ホールなど適材適所の収納スペースでスッキリ
■主寝室にはW.I.C、その他各居室にクローゼット完備
■リビングエアコン・全居室LED照明・網戸・食洗器・食器棚が標準装備!

間取り
3LDK
土地面積
208.47m²(63.06坪)
建物面積
93.69m²(28.28坪)
現況
完成済
建物
完成時期
2025年2月
引渡し可能日
相談
建築確認番号
第24UDI1S建02728号


周辺環境
-
緑ヶ丘小学校
約1,170m~約1,200m(徒歩約15分~約16分)
-
姿川中学校
約970m~約1000m(徒歩約12分~約13分)
-
東武宇都宮線「江曽島駅」
約670m~700m(約9分)
-
ヨークベニマル西川田店
約720m~約750m(約9分)
-
ウエルシアウエルシア宇都宮双葉店
約300m~約330m(約4分)
-
アピタ宇都宮店
約1,500m~約1,530m(約19分)

地図

物件概要
所在地
交通
東武宇都宮線「江曽島駅」から徒歩9分(約670m~700m)
販売価格
3,780万円~3,790万円
土地面積
189.77m²(57.4坪)~208.47m²(63.06坪)
建物面積
93.69m²(28.28坪)~95.26m²(28.76坪)
学区
緑が丘小学校 /姿川中学校
総区画数
3区画
販売棟数
地目
宅地
用途地域
第一種住居地域
都市計画
市街化区域
道路
6.0m幅員アスファルト舗装
建ぺい率
60
容積率
200
設備
公営水道・公共下水・東京電力・LPG個別方式
取引形態
売主
権利(土地権利)
所有権
施工・設計会社名
株式会社ノーブルホーム
その他特記事項
◎水道加入金 129,100円
・北側道路(市道)については法定外道路となります。
最終更新日
2025年7月16日
物件のご来場・お問い合わせ
マルワタウン江曽島駅南No.3
お電話でのお問い合わせご相談はこちら