ノーブルガーデン流山セントラルパーク駅北
日本にもっと 良質な木造住宅を
所在地
交通
TX「流山セントラルパーク駅」まで約550m~約580m(徒歩7~8分)
小学校 /
中学校
八木南小学校/八木中学校
販売価格
7,980万円
販売棟数
1棟
総区画数
3区画
-
区画図・
間取り -
周辺環境
-
地図
-
物件概要
区画図・間取り
ノーブルガーデン流山セントラルパーク駅北 No.1
販売価格 新価格
7,980万円(税込)
この物件の
ポイント
木造住宅のスケルトン部分を積水ハウスグループが設計・施工し、ノーブルホームがインフィル部分を施工してお客様にご提供する新しい住まいの形です。
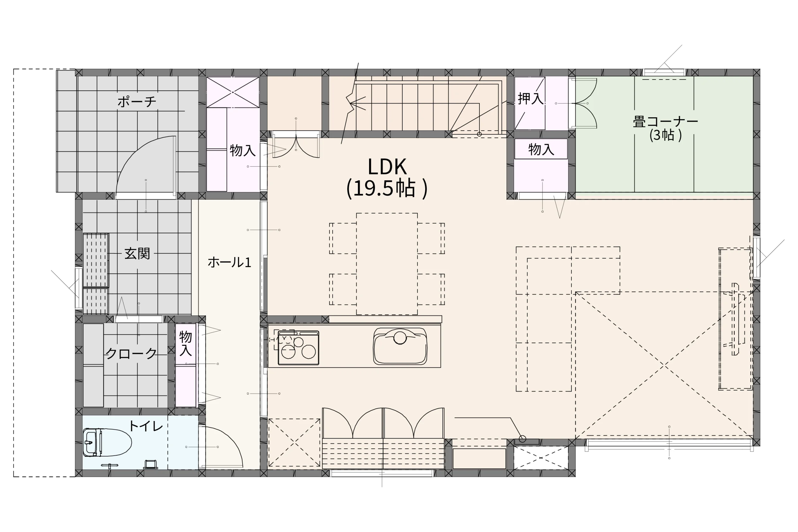
◎使い勝手の良い畳コーナー
リビングに併設する畳コーナーは、ちょっとした趣味を愉しむ場としてピッタリ。
◎広々としたゆとりリビング
大開口の窓が印象的なリビングは、ゆったりと過ごすことが出来る広々とした空間。
◎開放感を演出する吹き抜け空間
リビング上が吹き抜けになっており、3連窓も相まって開放感抜群の住空間を生み出します。
※こちらの建物は、新春キャンペーン建築資金500万円プレゼント対象外となります
間取り
3LDK
土地面積
149m²(45.07坪)
建物面積
112.41m²(34坪)
現況
完成済
建物
完成時期
2024年7月完成済
引渡し可能日
相談

周辺環境
-
八木南小学校
約2,100m(徒歩約26~27分)
-
八木中学校
約1,600m(徒歩約20分)
-
流山セントラルパーク駅
約550m~約580m(徒歩7~8分)
-
流山市総合運動公園
約230m(徒歩約4分)
-
東葛病院
約1,000m(徒歩約13分~14分)
地図
物件概要
所在地
交通
TX「流山セントラルパーク駅」まで約550m~約580m(徒歩7~8分)
販売価格
7,980万円
土地面積
149m²(45.07坪)
建物面積
112.41m²(34坪)
学区
八木南小学校/八木中学校
総区画数
3区画
販売棟数
1棟
地目
宅地
用途地域
第1種低層住居専用地域
都市計画
市街化区域
道路
公道 約10m
建ぺい率
60%
容積率
150%
設備
公営水道・東京電力・公共下水・都市ガス
取引形態
売主
権利(土地権利)
所有権
施工・設計会社名
株式会社ノーブルホーム
その他特記事項
最終更新日
2025年10月27日
物件のご来場・お問い合わせ
ノーブルガーデン流山セントラルパーク駅北 No.1
お電話でのお問い合わせご相談はこちら