メインビジュアル画像
注文住宅会社がつくる建売住宅人気エリアに登場 注文住宅会社がつくる建売住宅人気エリアに登場
完成する前に購入するメリット
対象物件はこちらから
完成する前に購入するメリット

ノーブルガーデン金沢町4丁目 No.7

茨城県日立市金沢町4丁目 (MAP)

国道6号線至近!南庭+車3台駐車可能な余裕のある敷地

土地面積

201.53m²(60.96坪)

建物面積

102.28m²(30.93坪)

ノーブルガーデン抽ヶ台南 No.3

茨城県常陸大宮市抽ヶ台町 (MAP)

通勤・通学に便利な好立地

販売価格

2,950 万円

間取り

3LDK

土地面積

220.58m²(66.72坪)

建物面積

100.19m²(30.3坪)

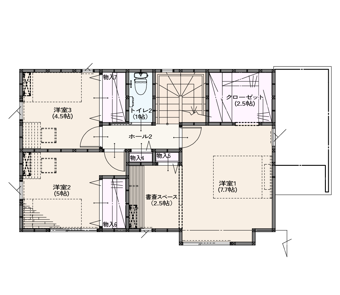
1F+外構図

1F+外構図

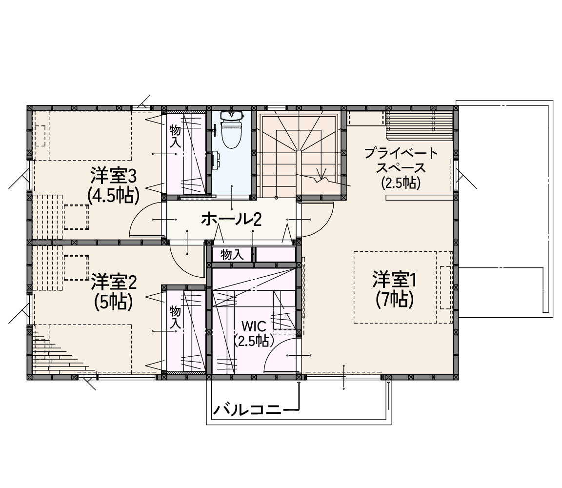
2F

2F

ノーブルガーデン常陸大宮下町 No.2

茨城県常陸大宮市下町 (MAP)

JR「常陸大宮駅」まで徒歩5分で、 通勤通学に便利な住環境

販売価格

2,980 万円

間取り

3LDK

土地面積

215.88m²(65.3坪)

建物面積

101.85m²(30.8坪)

1F+外構図

1F+外構図

2F

2F

ノーブルガーデン常陸大宮下町 No3

茨城県常陸大宮市下町 (MAP)

JR「常陸大宮駅」まで徒歩5分で、 通勤通学に便利な住環境

販売価格

2,980 万円

間取り

3LDK

土地面積

215.25m²(65.11坪)

建物面積

102.67m²(31.05坪)

1F+外構図

1F+外構図

2F

2F

ノーブルガーデン六ツ野5期 No.3

茨城県ひたちなか市大字中根字六ツ野 (MAP)

外野小学校、スーパーやドラッグストア徒歩15分圏内で利便性◎

販売価格

3,360 万円

間取り

3LDK

土地面積

235m²(71.09坪)

建物面積

99.36m²(30.05坪)

1F+外構図

1F+外構図

2F

2F

ノーブルガーデン南赤塚 No.49

水戸市河和田町字一丁田 (MAP)

北西角地の平屋建売、注文住宅でも人気の間取りを採用

販売価格

3,230 万円

間取り

3LDK

土地面積

255.23m²(77.2坪)

建物面積

91.5m²(27.68坪)

1F+外構図

1F+外構図

ノーブルガーデン酒門2期 No.D7

茨城県水戸市酒門町 (MAP)

回遊動線のスムーズな水廻りで家事時間を短縮

販売価格

2,930 万円

間取り

3LDK

土地面積

227.68m²(68.87坪)

建物面積

86.74m²(26.23坪)

1F+外構図

1F+外構図

セキュレア水戸内原スローライフガーデン No.3

茨城県水戸市内原町 (MAP)

LDK22帖超の平屋!3台駐車OK+広いお庭

販売価格

3,360 万円

間取り

3LDK

土地面積

274.47m²(83.02坪)

建物面積

83.02m²(26.9坪)

1F+外構図

1F+外構図

セキュレア水戸内原スローライフガーデン No.4

茨城県水戸市内原町 (MAP)

LDK18帖の平屋!3台駐車OK+広いお庭 内原小・中学校 徒歩8分圏内の好立地

販売価格

3,380 万円

間取り

3LDK

土地面積

276.84m²(83.74坪)

建物面積

89.43m²(27.05坪)

1F+外構図

1F+外構図

セキュレア水戸内原スローライフガーデン No.5

茨城県水戸市内原町 (MAP)

LDK18帖の平屋!3台駐車OK+広いお庭 内原小・中学校 徒歩8分圏内の好立地

販売価格

3,380 万円

間取り

3LDK

土地面積

276.84m²(83.74坪)

建物面積

89.43m²(27.05坪)

1F+外構図

1F+外構図

2F

2F

セキュレア水戸内原スローライフガーデン No.6

茨城県水戸市内原町 (MAP)

吹き抜けファミリースペースで家族の絆を感じる間取り。3台駐車&太陽光&スマートホーム仕様です!

販売価格

3,380 万円

間取り

3LDK

土地面積

252.17m²(76.28坪)

建物面積

99.78m²(30.17坪)

1F+外構図

1F+外構図

2F

2F

ノーブルガーデン笠間市鴻巣 No.10

茨城県笠間市鴻巣 (MAP)

希少な3方角地!3台駐車OKでLDK19帖超の「平屋」、友部駅まで徒歩15分

販売価格

3,080 万円

間取り

3LDK

土地面積

215.45m²(65.17坪)

建物面積

89.02m²(26.92坪)

1F+外構図

1F+外構図

ノーブルガーデン下高津 No.12

茨城県土浦市下高津3丁目 (MAP)

下高津小学校、イオンモール土浦まで徒歩5分圏内

販売価格

3,180 万円

間取り

3LDK

土地面積

236.88m²(71.66坪)

建物面積

97.71m²(29.55坪)

1F+外構図

1F+外構図

2F

2F

ノーブルガーデン下高津 No.13

茨城県土浦市下高津3丁目 (MAP)

下高津小学校、イオンモール土浦まで徒歩5分圏内

販売価格

3,180 万円

間取り

3LDK

土地面積

237.88m²(71.96坪)

建物面積

102.26m²(30.92坪)

1F+外構図

1F+外構図

2F

2F

鹿嶋市平井東1丁目 No.1

茨城県鹿嶋市平井東1丁目 (MAP)

家事ラクな水廻り動線 ゆとりある暮らしを実現

販売価格

2,780 万円

間取り

3LDK

土地面積

268m²(81.07坪)

建物面積

101.33m²(30.65坪)

1F+外構図

1F+外構図

2F

2F

都賀町平川2期 No.10

栃木県栃木市都賀町平川 (MAP)

開放感溢れる角地でお庭も広々 南向きLDKやリビング階段で家族時間を大切に

販売価格

2,730 万円

間取り

3LDK+畳コーナー

土地面積

200.55m²(60.66坪)

建物面積

97.61m²(29.47坪)

1F+外構図

1F+外構図

2F

2F

平井町7期 No.1

栃木県栃木市平井町字田中 (MAP)

ゆとりのある区画で 家族が自然と集まる暮らしを叶える

販売価格

2,680 万円

間取り

3LDK+畳コーナー

土地面積

248m²(75.02坪)

建物面積

96.74m²(29.21坪)

1F+外構図

1F+外構図

2F

2F

栃木市今泉町2期 No.31

栃木県栃木市今泉町一丁目字情進川戸768-1外 (MAP)

「太陽光発電システム」9.345kW搭載!

販売価格

3,250 万円

間取り

3LDK+畳コーナー

土地面積

226.31m²(68.45坪)

建物面積

105.98m²(32.05坪)

1F+外構図

1F+外構図

2F

2F

佐野市伊勢山町2期 No.1

栃木県佐野市伊勢山町 (MAP)

LDKと繋がる中庭で家族団らん 細やかな工夫を凝らした間取り

販売価格

2,980 万円

間取り

3LDK

土地面積

220.15m²(66.59坪)

建物面積

76.18m²(23坪)

1F+外構図

1F+外構図

ノーブルガーデン小金井駅東2期 No.7

栃木県下野市柴字烏ケ森1428番9外 (MAP)

区画の整った、子育てに優しい住環境

販売価格

3,420 万円

間取り

3LDK

土地面積

252.97m²(76.52坪)

建物面積

103.09m²(31.18坪)

1F+外構図

1F+外構図

2F

2F

ノーブルガーデン小金井3丁目2期 No.1

栃木県下野市小金井三丁目 (MAP)

小金井駅まで徒歩17分、小中学校まで徒歩10分圏内の好立地

販売価格

3,490 万円

間取り

3LDK

土地面積

240m²(72.6坪)

建物面積

104.12m²(31.49坪)

1F+外構図

1F+外構図

2F

2F

ノーブルガーデン小金井3丁目2期 No.2

栃木県下野市小金井三丁目 (MAP)

小金井駅まで徒歩17分、小中学校まで徒歩10分圏内の好立地

販売価格

3,490 万円

間取り

3LDK

土地面積

240m²(72.6坪)

建物面積

104.13m²(31.49坪)

1F+外構図

1F+外構図

2F

2F

栃木市運動公園東 No.10

栃木県栃木市川原田町字笹塚387番1外 (MAP)

開放感あふれる21帖の大空間LDKで家族団らん

販売価格

2,840 万円

間取り

3LDK+畳コーナー

土地面積

204.83m²(61.96坪)

建物面積

102.16m²(30.84坪)

1F+外構図

1F+外構図

2F

2F

栃木市運動公園東 No.12

栃木県栃木市川原田町字笹塚387番1外 (MAP)

開放感ある希少な3方角地 リビング階段とタタミで家族時間が増える住まい

販売価格

2,750 万円

間取り

3LDK+畳コーナー

土地面積

205.34m²(62.11坪)

建物面積

100.36m²(30.29坪)

1F+外構図

1F+外構図

2F

2F

最新物件情報、資金計画のご相談、購入の不安解消まで、一気に相談ができる

建売一斉相談会 建売一斉相談会

建売一斉相談会はご予約後、最寄りの担当店舗よりご連絡いたします。

ご成約特典
ご成約までの流れを示したエリアの見出しテキスト
ご成約までの流れを示した画像
コンテンツタイトル:物件の問合せ・ご相談

キャンペーン対象物件やそうでない物件、具体的な物件が決まっていない方でも、お気軽にお問合せください!予約フォームよりご予約またはお電話にてお問合せください。

スマートフォンで問い合わせを行うイメージ画像
コンテンツタイトル:現地ご案内

既に完成している物件については、ぜひ内覧をおすすめします。実際の生活をイメージしながら新築物件のご見学をご家族でお楽しみください。物件についての不明点や住環境の情報など、当日担当者が詳しくご案内いたします。 完成前物件については、図面や立体パースなど、どんな建物になるかを担当者からご説明したり、どんな場所に建つのか建築地のご案内も承っております。

物件案内を行う営業マンのイメージ画像
コンテンツタイトル:資金計画

減税制度や補助金などの案内もさせていただきながら、「無理のない住宅ローンの借入額」を相談していきましょう。
ノーブルホームの建売物件については、地盤調査費や水道引き込み費などをお客様が負担する必要がございませんので、資金計画もスムーズです。

物件案内を行う営業マンのイメージ画像
コンテンツタイトル:ご成約・お引き渡し

お引越しのタイミングなどを相談しながら、無事にご契約となります。お引渡し前の最終クリーニングを経て、お引渡しいたします。いよいよ新居での生活のスタートです。

タイトル:ノーブホーム「建売」のあたりまえ

閉じる